
Project Overview
📝 Project Description
🏗️ Project Details
📋 Project Remarks
📊 Expert Analysis
🏢 Raunak Group
Developer: Raunak Group
🏗️ Other Projects by Raunak Group
📸 Project Gallery (9 images)









🏊 Amenities & Features (17 amenities)
📄 E-Brochures & Documents
🔒 Share your details to receive brochures directly on WhatsApp.
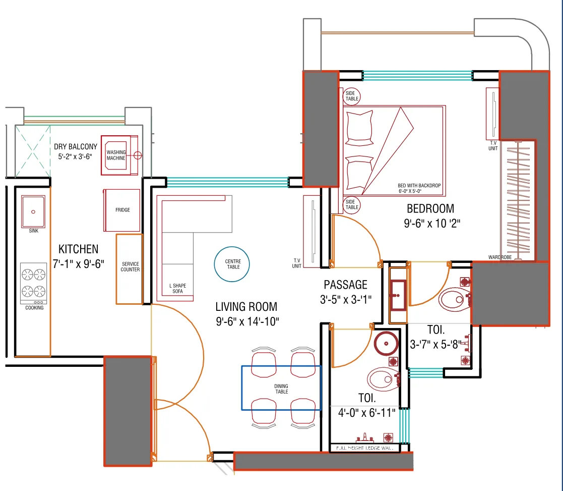
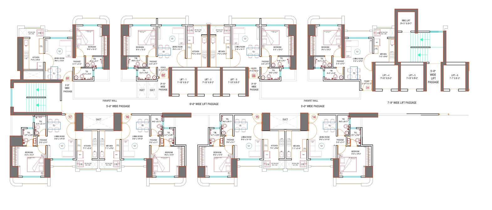
📐 Floor Plans & Site Plans
🔒 Share your details to receive floor plans directly on WhatsApp.


Other Projects in Thane West
📐 Approximate Pricing — Area & Bedrooms
| Type | Carpet Area | Indicative Price | Approx. ₹/sqft |
|---|---|---|---|
| 1 BHK | 405 sq.ft. | 66 Lacs All In | — |
🧮 Financial Tools
💰 EMI Calculator
🔄 Rent vs Buy
Should you rent or buy in Thane West? Compare monthly costs.
❓ Frequently Asked Questions
What is the RERA number for Raunak 108?
The RERA registration number for Raunak 108 is P51700028435. You can verify this on the MahaRERA website.
What configurations are available at Raunak 108?
Raunak 108 offers 1 BHK configurations.
What is the price range at Raunak 108?
Prices at Raunak 108 start from approximately 66 Lacs All In (indicative only). Contact the developer for final pricing.
When is the possession date for Raunak 108?
The expected possession date for Raunak 108 is Dec 2025.
Who is the developer of Raunak 108?
Raunak 108 is developed by Raunak Group.
What amenities are available at Raunak 108?
Raunak 108 offers amenities including Air Conditioned Lobby, Grand entrance lobby, Gymnasium, Imported Sanitary Fittings, Intercom/CCTV, POP finished walls, Granite Platform, Reception Desk, and more.
Where is Raunak 108 located?
Raunak 108 is located in Thane West, Mumbai.
📋 MahaRERA Project Details
UNNATHI ASSOCIATES




.webp)

