Balaji Garden

LOCATION: Dombivali DEVELOPER: Neel Sidhi Group
Starting from
Aesthetically designed 9 towers of stilt + 15 storeyed, Balaji Garden is sheer harmony to begin with. Located strategically in Dombivali(E), it also boasts of a green environment. For those who are searching for an ideal haven away from the din and bustle of daily life, this is an apt choice. A relaxed lifestyle, green expanses and modern convenience, your life has just started to be eventful.

Overall Rating 6

Amenities 4.8

Location 5.7

Developer 7.0

Value for Money 5.0

Legal 5.6


About Balaji Garden
Aesthetically designed 9 towers of stilt + 15 storeyed, Balaji Garden is sheer harmony to begin with. Located strategically in Dombivali(E), it also boasts of a green environment. For those who are searching for an ideal haven away from the din and bustle of daily life, this is an apt choice. A relaxed lifestyle, green expanses and modern convenience, your life has just started to be eventful.
Apartments in Balaji Garden
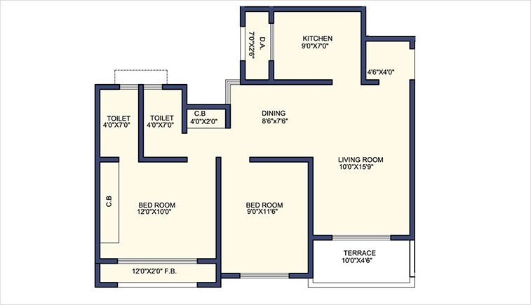
  • 2 BHK apartment in Balaji Garden 1020 sq.ft. Built-up - Base Price 64.26 Lacs. | 0 Units Available
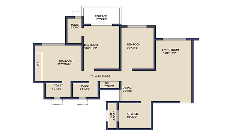
  • 3 BHK apartment in Balaji Garden 1250 sq.ft. Built-up - Base Price 78.75 Lacs.
  • 1 BHK apartment in Balaji Garden 630 sq.ft. Built-up - Base Price 39.69 Lacs. | 0 Units Available
Specifications
Const. Stage: Sold Out
Parking: Open;
Floors: 15
RERA Registered
Balaji Garden QR Code
Balaji Garden
MahaRERA -

Fitouts in 2 years

Guarantee with no doubt

Free Moving

Free packing & moving

Project RERA Details
MAHA RERA No:
RERA Project Name
RERA Developer
Project Type
RERA Project Status
Litigations
RERA Location
Funding Bank
Architect
Proposed Possession
Revised Possession
Extended Possession
Last Modified
Last Retrived

Balaji Garden Queries

Location Map
4.8
Average Rating
Based on 7 Ratings and 0 Reviews
86%
14%
Submit Review

Add a Review

Your email address will not be published. Required fields are marked *

1 2 3 4 5
Govt. Registered Transactions and Property Rates in Balaji Garden

Latest Transactions in Balaji Garden

Date Agreement Price Area(sq.ft) Rate/sq.ft Ready Reckoner Value Flat & Floor No. Transaction Type

Latest News & Articles

Balaji Garden by Neel Sidhi Group