






Property Details
About This Property
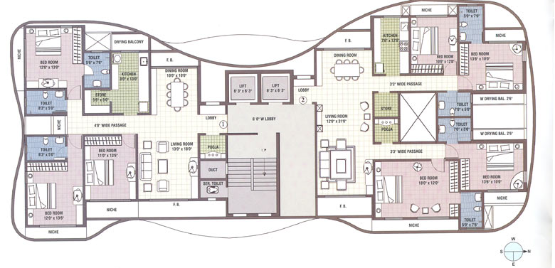
3 BHK Flat for Sale in Castlerock, Mulund East | Rs. 64 Lakhs
An architectural master piece of modern age in the heart of Hari Om Nagar in Mulund East is just a minute away from the railway station and eastern express highway offering a life style that one can seek for.Building Information

