
Project Overview
Location
Mahim
Sub-Location
Off L. J. Road.
Status
Sold Out
Rate
₹10,000/sqft
Type
Residential
Floors
7
📝 Project Description
🏗️ Project Details
New Greenlawn, a 7 storey building offers well planned 1 rk, 1bhk and 2bhk apartments with a sea view.
🏢 About the Project
Most centrally located, an ideal address in Mahim with the Railway Station, School & Market within five minutes distance.It offers 1 RK, 1 BHK, 2 BHK and 3 BHK flats, some do have a sea view while some may not.
📍 About the Location
Close proximity to Mahim station at the same time just couple of minutes from the main L.J Road providing easy accessibility to both Western suburbs and South Mumbai.
🗺️ Proximity & Distances
Airport
45 Min Domestic - 60 Min International.
Railway Station
Mahim - 5 min.
📊 Expert Analysis
📈 Price History
3/17/2006 - Rs.6000/-
1/10/2007 - Rs.7000/-
4/9/2007 - Rs.10000/-
5/5/2007 - Rs.12000/-
1/10/2007 - Rs.7000/-
4/9/2007 - Rs.10000/-
5/5/2007 - Rs.12000/-
🏢 Rizvi Builders
Developer: Rizvi Builders
🏗️ Other Projects by Rizvi Builders
📸 Project Gallery (9 images)

Main Image

15 March 2007

21 July 2007

8 Nov 2007

Main Image

8 Oct 2008

3rd Dec 2008

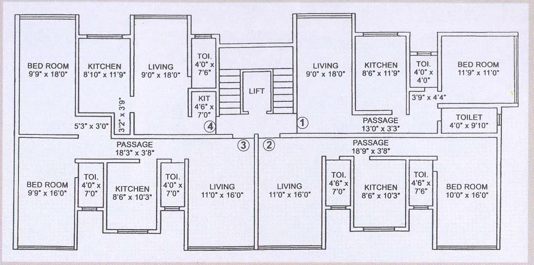
Floor Plan

Site Plan
🏊 Amenities & Features (5 amenities)
Common
(2)
🏢 Grand entrance lobby🏢 High speed elevators
Interior
(1)
🏠 Vitrified flooring
Kitchen
(1)
🪨 Granite Platform
General
(1)
✨ None
📐 Floor Plans & Site Plans
🔒 Share your details to receive floor plans directly on WhatsApp.

📐 Floor Plan — 🔐 Share details to view

🗺️ Site Plan — 🔐 Share details to view
Other Projects in Mahim
📐 Approximate Pricing — Area & Bedrooms
| Type | Carpet Area | Indicative Price | Approx. ₹/sqft |
|---|---|---|---|
| 1 BHK | None sq.ft. | None | — |
| 1 BHK | None sq.ft. | None | — |
| 1 RK | None sq.ft. | None | — |
| 2 BHK | None sq.ft. | None | — |
| 3 BHK | None sq.ft. | None | — |
| 3 BHK | None sq.ft. | None | — |
⚠️ Disclaimer: All prices listed above are approximate and indicative only,
sourced from publicly available information. Final pricing is determined and communicated
exclusively by the Developer at their registered office. Mumbai Property Exchange makes no
warranty regarding accuracy and accepts no liability — no queries on pricing shall be
entertained.
🧮 Financial Tools
💰 EMI Calculator
—
Monthly EMI
—
Loan Amount
—
Total Interest
🔄 Rent vs Buy
Should you rent or buy in Mahim? Compare monthly costs.
—
Monthly Rent Cost
—
Monthly Buy Cost (EMI)
❓ Frequently Asked Questions
What configurations are available at New Greenlawn?
New Greenlawn offers 1 BHK, 1 RK, 2 BHK, 3 BHK configurations.
What is the price per sq.ft. at New Greenlawn?
The approximate price per sq.ft. at New Greenlawn is ₹10000. Actual rates may vary.
Who is the developer of New Greenlawn?
New Greenlawn is developed by Rizvi Builders.
What amenities are available at New Greenlawn?
New Greenlawn offers amenities including Grand entrance lobby, High speed elevators, Vitrified flooring, Granite Platform, and more.
Where is New Greenlawn located?
New Greenlawn is located in Mahim, Mumbai.
📊 Property Rates in Mahim
₹10,000/sqft
This Project Rate
⏳ Loading market data...
🏘️ Properties in Mahim
⏳ Loading properties in Mahim...
Mahim · Sold Out






