
Project Overview
📝 Project Description
🏗️ Project Details
🏢 About the Project
📍 About the Location
📊 Expert Analysis
🏢 Mandar Group
Developer: Mandar Group
🏗️ Other Projects by Mandar Group
📸 Project Gallery (3 images)



🏊 Amenities & Features (12 amenities)
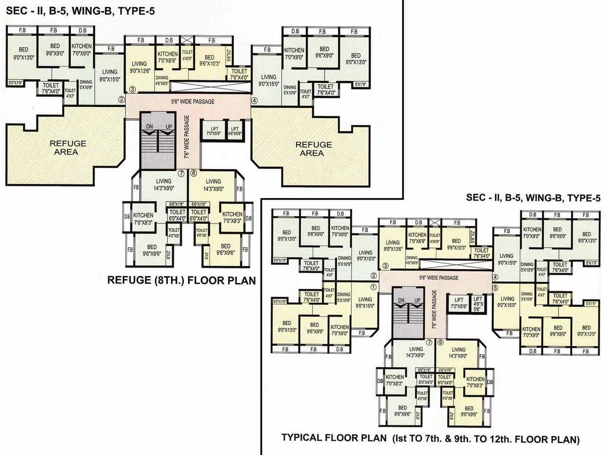
📐 Floor Plans & Site Plans
🔒 Share your details to receive floor plans directly on WhatsApp.

Other Projects in Virar
📐 Approximate Pricing — Area & Bedrooms
| Type | Carpet Area | Indicative Price | Approx. ₹/sqft |
|---|---|---|---|
| 1 BHK | 431 sq.ft. | None | — |
| 1 BHK | 434 sq.ft. | None | — |
| 2 BHK | 604 sq.ft. | None | — |
🧮 Financial Tools
💰 EMI Calculator
🔄 Rent vs Buy
Should you rent or buy in Virar? Compare monthly costs.
❓ Frequently Asked Questions
What configurations are available at Mandar Avenue F?
Mandar Avenue F offers 1 BHK, 2 BHK configurations.
What is the price per sq.ft. at Mandar Avenue F?
The approximate price per sq.ft. at Mandar Avenue F is ₹4500. Actual rates may vary.
When is the possession date for Mandar Avenue F?
The expected possession date for Mandar Avenue F is Apr 2016.
Who is the developer of Mandar Avenue F?
Mandar Avenue F is developed by Mandar Group.
What amenities are available at Mandar Avenue F?
Mandar Avenue F offers amenities including Club House, Grand entrance lobby, Gymnasium, Intercom/CCTV, POP finished walls, Vitrified flooring, Granite Platform, and more.
Where is Mandar Avenue F located?
Mandar Avenue F is located in Virar, Mumbai.






