
Project Overview
Location
Kharghar
Sub-Location
Plot No.C/3, Sector 12
Status
Sold Out
Type
Residential
Floors
7
📝 Project Description
🏗️ Project Details
A Ground + 7 Storey Residential Project wih 15 shops on Gd Floor and 80 Flats planned to have crossed ventilation and natural light.
🏢 About the Project
It is a small building, construction on in full swing. The 2 bhk 910 have a balcony area which is charged as well.
📍 About the Location
Very close to Gokhale School and MSEB, Station is around 10 Min
🗺️ Proximity & Distances
Airport
90 Min
Railway Station
10 Min
📊 Expert Analysis
📈 Price History
2/13/2006 - Rs.1600/-
3/20/2006 - Rs.1650/-
5/16/2006 - Rs.1900/-
7/19/2006 - Rs.2000/-
8/17/2006 - Rs.2050/-
9/12/2006 - Rs.2100/-
10/16/2006 - Rs.2200/-
11/22/2006 - Rs.2300/-
12/22/2006 - Rs.2450/-
2/21/2007 - Rs.2500/-
4/21/2007 - Rs.2550/-
8/23/2007 - Rs.2600/-
3/20/2006 - Rs.1650/-
5/16/2006 - Rs.1900/-
7/19/2006 - Rs.2000/-
8/17/2006 - Rs.2050/-
9/12/2006 - Rs.2100/-
10/16/2006 - Rs.2200/-
11/22/2006 - Rs.2300/-
12/22/2006 - Rs.2450/-
2/21/2007 - Rs.2500/-
4/21/2007 - Rs.2550/-
8/23/2007 - Rs.2600/-
🏢 Millenium Corporation
Developer: Millenium Corporation
🏗️ Other Projects by Millenium Corporation
📸 Project Gallery (8 images)

Main Image

floor plan

layout

12 Feb 2007

26 July 2007

3rd Dec 2007

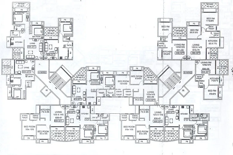
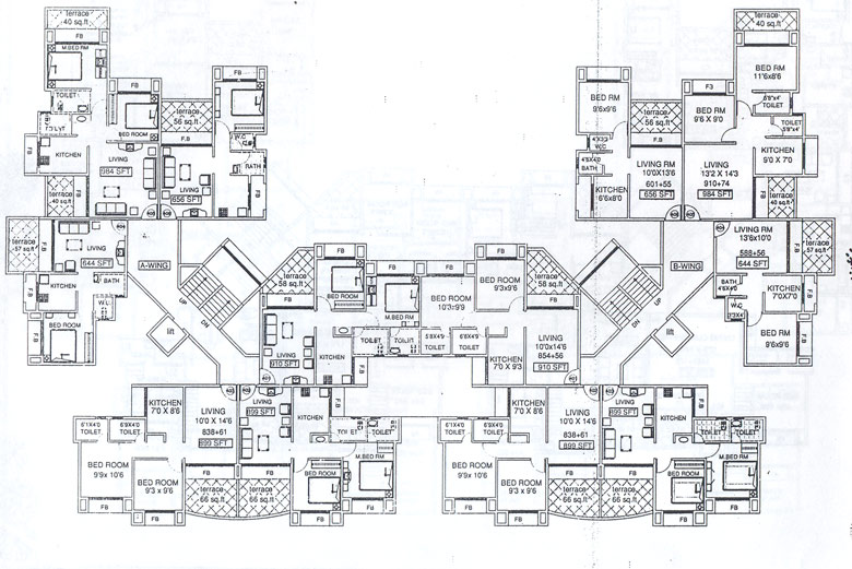
Floor Plan

Site Plan
🏊 Amenities & Features (3 amenities)
Interior
(1)
🏠 Imported Sanitary Fittings
Kitchen
(1)
🪨 Granite Platform
General
(1)
✨ None
📐 Floor Plans & Site Plans
🔒 Share your details to receive floor plans directly on WhatsApp.

📐 Floor Plan — 🔐 Share details to view

🗺️ Site Plan — 🔐 Share details to view
Other Projects in Kharghar
📐 Approximate Pricing — Area & Bedrooms
| Type | Carpet Area | Indicative Price | Approx. ₹/sqft |
|---|---|---|---|
| 2 BHK | None sq.ft. | None | — |
⚠️ Disclaimer: All prices listed above are approximate and indicative only,
sourced from publicly available information. Final pricing is determined and communicated
exclusively by the Developer at their registered office. Mumbai Property Exchange makes no
warranty regarding accuracy and accepts no liability — no queries on pricing shall be
entertained.
🧮 Financial Tools
💰 EMI Calculator
—
Monthly EMI
—
Loan Amount
—
Total Interest
🔄 Rent vs Buy
Should you rent or buy in Kharghar? Compare monthly costs.
—
Monthly Rent Cost
—
Monthly Buy Cost (EMI)
❓ Frequently Asked Questions
What configurations are available at Millenium Orchid?
Millenium Orchid offers 2 BHK configurations.
Who is the developer of Millenium Orchid?
Millenium Orchid is developed by Millenium Corporation .
What amenities are available at Millenium Orchid?
Millenium Orchid offers amenities including Imported Sanitary Fittings, Granite Platform, and more.
Where is Millenium Orchid located?
Millenium Orchid is located in Kharghar, Mumbai.
📊 Property Rates in Kharghar
⏳ Loading market data...
🏘️ Properties in Kharghar
⏳ Loading properties in Kharghar...
Kharghar · Sold Out






