
📋 Quick Facts: Neel Viveza
| Developer | Neel Sidhi Group |
|---|---|
| Location | Ulwe, Plot No.82, Sector 5. Behind Moreshwar Heritage Bld., Mumbai |
| Price | ₹5,500/sq.ft. |
| Project Status | Sold Out |
| Project Type | Residential |
| Floors | 7 |
| Zone Average Rate | ₹24,267/sq.ft. (210 projects in zone) |
Project Overview
Location
Ulwe
Sub-Location
Plot No.82, Sector 5. Behind Moreshwar Heritage Bld.
Status
Sold Out
Rate
₹5,500/sqft
Type
Residential
Floors
7
📝 Project Description
🏗️ Project Details
A place characterized by high spirits represents Viveza. A place that exudes brightness in life represents Viveza. A place executed by a sheer sense of craftiness represents Viveza.
⭐ Project Ratings
🏢 Neel Sidhi Group
Developer: Neel Sidhi Group
🏗️ Other Projects by Neel Sidhi Group
Neelsidhi Ballarat, New PanvelNeelsidhi Ashwin, Ghatkopar EastNeelsidhi Jaybandhu, Ghatkopar EastNeelsidhi Brindavan, Ghatkopar EastPrime, New PanvelAmarante, KalamboliNeel Sidhi Emerald, New PanvelNeel Sidhi Joya, UlweNeel Sidhi Vista, UlweNeel Sidhi Gloria, UlweAmarante Phase I, KalamboliNeel Sidhi Atlantis, Nerul
📸 Project Gallery (4 images)

Main Image

12 March 2013

6th Dec 2013

Floor Plan
🏊 Amenities & Features (2 amenities)
Interior
(1)
🏠 POP finished walls
General
(1)
✨ None
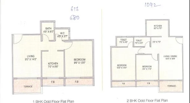
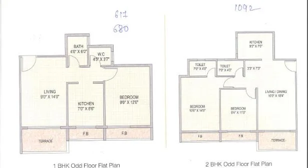
📐 Floor Plans & Site Plans
🔒 Share your details to receive floor plans directly on WhatsApp.

📐 Floor Plan — 🔐 Share details to view
🎥 Project Videos
Other Projects in Ulwe
📐 Approximate Pricing — Area & Bedrooms
| Type | Carpet Area | Indicative Price | Approx. ₹/sqft |
|---|---|---|---|
| 2 BHK | 732 sq.ft. | None | — |
⚠️ Disclaimer: All prices listed above are approximate and indicative only,
sourced from publicly available information. Final pricing is determined and communicated
exclusively by the Developer at their registered office. Mumbai Property Exchange makes no
warranty regarding accuracy and accepts no liability — no queries on pricing shall be
entertained.
🧭 Project Compass
How far is Neel Viveza from your daily life? Add your anchors to see commute times.
🧮 Financial Tools
💰 EMI Calculator
—
Monthly EMI
—
Loan Amount
—
Total Interest
🔄 Rent vs Buy
Should you rent or buy in Ulwe? Compare monthly costs.
—
Monthly Rent Cost
—
Monthly Buy Cost (EMI)
❓ Frequently Asked Questions
What configurations are available at Neel Viveza?
Neel Viveza offers 2 BHK configurations.
What is the price per sq.ft. at Neel Viveza?
The approximate price per sq.ft. at Neel Viveza is ₹5500. Actual rates may vary.
Who is the developer of Neel Viveza?
Neel Viveza is developed by Neel Sidhi Group.
What amenities are available at Neel Viveza?
Neel Viveza offers amenities including POP finished walls, and more.
Where is Neel Viveza located?
Neel Viveza is located in Ulwe, Mumbai.
📊 Property Rates in Ulwe
₹5,500/sqft
This Project Rate
⏳ Loading market data...
🏘️ Properties in Ulwe
⏳ Loading properties in Ulwe...






