
Project Overview
📝 Project Description
🏗️ Project Details
🏢 About the Project
📍 About the Location
📋 Project Remarks
🗺️ Proximity & Distances
⭐ Project Ratings
🏢 Raunak Group
Developer: Raunak Group
🏗️ Other Projects by Raunak Group
📸 Project Gallery (4 images)




🏊 Amenities & Features (9 amenities)
📄 E-Brochures & Documents
🔒 Share your details to receive brochures directly on WhatsApp.
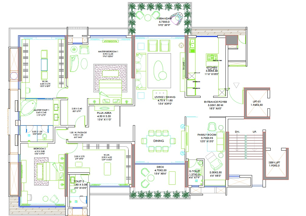
📐 Floor Plans & Site Plans
🔒 Share your details to receive floor plans directly on WhatsApp.


Other Projects in Thane West
📐 Approximate Pricing — Area & Bedrooms
| Type | Carpet Area | Indicative Price | Approx. ₹/sqft |
|---|---|---|---|
| 4 BHK | 3200 sq.ft. | 13 Cr All in | — |
🧮 Financial Tools
💰 EMI Calculator
🔄 Rent vs Buy
Should you rent or buy in Thane West? Compare monthly costs.
❓ Frequently Asked Questions
What is the RERA number for Viraj Tower?
The RERA registration number for Viraj Tower is P51700005880. You can verify this on the MahaRERA website.
What configurations are available at Viraj Tower?
Viraj Tower offers 4 BHK configurations.
What is the price range at Viraj Tower?
Prices at Viraj Tower start from approximately 13 Cr All in (indicative only). Contact the developer for final pricing.
Who is the developer of Viraj Tower?
Viraj Tower is developed by Raunak Group.
What amenities are available at Viraj Tower?
Viraj Tower offers amenities including High speed elevators, Kid's play area, Power Backup, Imported Sanitary Fittings, Intercom/CCTV, POP finished walls, Granite Platform, and more.
Where is Viraj Tower located?
Viraj Tower is located in Thane West, Mumbai.
📋 MahaRERA Project Details
Shree Viraj Enterprises






