
Project Overview
Location
Kalyan
Sub-Location
Haji Malang Road
Status
Sold Out
Type
Residential
Floors
3
📝 Project Description
🏗️ Project Details
In the lap of nature. In the heart of greenery. In the scenic hilly atmosphere of Kalyan, comes a beautiful settlement of bliss and modern comforts. Anmol Gardens. A world that is another name for paradise on earth.It is this fine mix of natural gifts, expert planning and modern lifestyle that makes Anmol.
🏢 About the Project
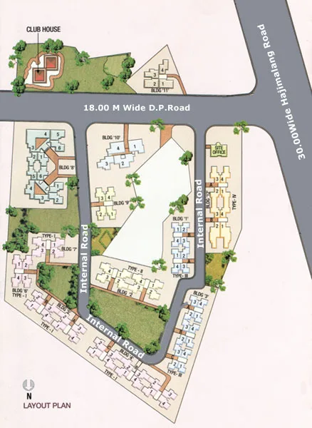
Anmol Gardens is Gr +3 storey project and it is divided into Phase I and Phase II. Phase I includes 11 buildinds of which 7 building is in ready possession. Out of that 4 building is sold out and remaining 2 building is available @ 1000/- per sq ft offering 1rk and 1bhk.Rest 4 building is under construction offering 1bhk and 2bhk. The possession time is different for each building. Anmol Gardens is a mega residential township offering a choice of 1 room kitchen, 1 BHK, 2 BHK flats and shopping units.There are very limited options available... also rates varry for ready possession and under construction building.
📍 About the Location
It is just 2 km away from Kalyan (E) station on the main Kalyan Haji Malang Road.
🗺️ Proximity & Distances
Airport
120 min
Railway Station
5-10 min
📊 Expert Analysis
📈 Price History
12/19/2006 - Rs.900/-
1/8/2007 - Rs.1100/-
3/26/2007 - Rs.1150/-
8/22/2007 - Rs.1200/-
1/8/2007 - Rs.1100/-
3/26/2007 - Rs.1150/-
8/22/2007 - Rs.1200/-
🏢 Shree Housing
Developer: Shree Housing
🏗️ Other Projects by Shree Housing
📸 Project Gallery (6 images)

Main Image

Floor Plan type 1

Floor Plan Type 2

Layout

Floor Plan

Site Plan
🏊 Amenities & Features (5 amenities)
General
(1)
✨ None
Common
(2)
🏢 High speed elevators🧒 Kid's play area
Interior
(2)
🏠 Imported Sanitary Fittings🏠 POP finished walls
📐 Floor Plans & Site Plans
🔒 Share your details to receive floor plans directly on WhatsApp.

📐 Floor Plan — 🔐 Share details to view

🗺️ Site Plan — 🔐 Share details to view
Other Projects in Kalyan
📐 Approximate Pricing — Area & Bedrooms
| Type | Carpet Area | Indicative Price | Approx. ₹/sqft |
|---|---|---|---|
| 1 BHK | None sq.ft. | None | — |
⚠️ Disclaimer: All prices listed above are approximate and indicative only,
sourced from publicly available information. Final pricing is determined and communicated
exclusively by the Developer at their registered office. Mumbai Property Exchange makes no
warranty regarding accuracy and accepts no liability — no queries on pricing shall be
entertained.
🧮 Financial Tools
💰 EMI Calculator
—
Monthly EMI
—
Loan Amount
—
Total Interest
🔄 Rent vs Buy
Should you rent or buy in Kalyan? Compare monthly costs.
—
Monthly Rent Cost
—
Monthly Buy Cost (EMI)
❓ Frequently Asked Questions
What configurations are available at Anmol Garden?
Anmol Garden offers 1 BHK configurations.
Who is the developer of Anmol Garden?
Anmol Garden is developed by Shree Housing.
What amenities are available at Anmol Garden?
Anmol Garden offers amenities including High speed elevators, Kid's play area, Imported Sanitary Fittings, POP finished walls, and more.
Where is Anmol Garden located?
Anmol Garden is located in Kalyan, Mumbai.
📊 Property Rates in Kalyan
⏳ Loading market data...
🏘️ Properties in Kalyan
⏳ Loading properties in Kalyan...

.webp)




