
Project Overview
Location
Khar West
Sub-Location
14th Road, La Vie
Status
Sold Out
Type
Residential
Floors
7
📝 Project Description
🏗️ Project Details
This is one of the project developed by L.Nagpal Developers and enjoys an exclusive surrounding.
🏢 About the Project
In Anupama the pent house is available on the 9th and the 10th floor the area for it is around 4200 sq.ft.
📍 About the Location
This project is coming up Khar West 14th Road, very well located and yet very peaceful surroundings. Close proximity to the schools, colleges, hospitals, shopping areas and much more.
🗺️ Proximity & Distances
Airport
30 min
Railway Station
15 min
⭐ Project Ratings
🏢 L.Nagpal Developers
Developer: L.Nagpal Developers
🏗️ Other Projects by L.Nagpal Developers
📸 Project Gallery (12 images)

Main Image

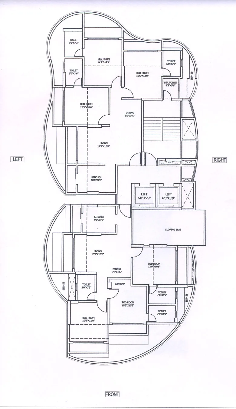
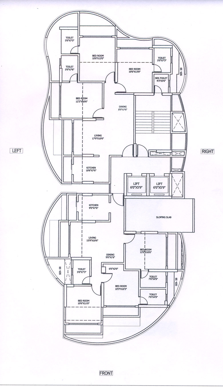
Floor Plan I

Floor Plan II

Main Image

16th Dec 2009

21 March 2010

11th Nov 2011

30.5.2012

11th Sep 2012

23 Jan 2013

Floor Plan

Site Plan
🏊 Amenities & Features (3 amenities)
Common
(1)
🏢 High speed elevators
Interior
(2)
🏠 Imported Sanitary Fittings🏠 POP finished walls
📐 Floor Plans & Site Plans
🔒 Share your details to receive floor plans directly on WhatsApp.

📐 Floor Plan — 🔐 Share details to view

🗺️ Site Plan — 🔐 Share details to view
🎥 Project Videos
Other Projects in Khar West
📐 Approximate Pricing — Area & Bedrooms
| Type | Carpet Area | Indicative Price | Approx. ₹/sqft |
|---|---|---|---|
| 3 BHK | None sq.ft. | None | — |
| Pent House | None sq.ft. | None | — |
⚠️ Disclaimer: All prices listed above are approximate and indicative only,
sourced from publicly available information. Final pricing is determined and communicated
exclusively by the Developer at their registered office. Mumbai Property Exchange makes no
warranty regarding accuracy and accepts no liability — no queries on pricing shall be
entertained.
🧮 Financial Tools
💰 EMI Calculator
—
Monthly EMI
—
Loan Amount
—
Total Interest
🔄 Rent vs Buy
Should you rent or buy in Khar West? Compare monthly costs.
—
Monthly Rent Cost
—
Monthly Buy Cost (EMI)
❓ Frequently Asked Questions
What configurations are available at Anupama?
Anupama offers 3 BHK, Pent House configurations.
Who is the developer of Anupama?
Anupama is developed by L.Nagpal Developers.
What amenities are available at Anupama?
Anupama offers amenities including High speed elevators, Imported Sanitary Fittings, POP finished walls, and more.
Where is Anupama located?
Anupama is located in Khar West, Mumbai.
📊 Property Rates in Khar West
⏳ Loading market data...
🏘️ Properties in Khar West
⏳ Loading properties in Khar West...






