
Project Overview
🎥 Project Video
📝 Project Description
🏗️ Project Details
Kalpataru Yashodhan at S V Road in Andheri West, Mumbai, is a plush address that is nestled in the lap of nature and spread over 1.9 acres.Strategically located on SV Road, & in close proximity to Lallu Bhai Park & SV Park, the luxurious 2 & 3 BHK homes offer serene views. Boasting of a lavish clubhouse, swimming pool, party hall and more, here, you will be immersed in a world of calm as soon as you step inside.
Kalpataru Yashodhan is a 13 storied Ready Possession Project (OC Received) and the location is S.V.Road, Lalubhai Park, Andheri West and is developed by Kalpataru Limited. Kalpataru Yashodhan was launched in Jun 2016.
Kalpataru Yashodhan is RERA approved has the Registration Number bearing P51800000442.
It has 2 Towers, which provides an exclusive 3BHK apartments that has various amenities along with luxurious lifestyle. There is basement parking upto 3 levels and 2 cars parking available for each flat owner in Kalpataru Yashodhan.
Kalpataru Limited also has other under construction and ready possession and sold out projects like Horizon, Kalpataru Royale, Kalpataru Estate, Kalpataru Gardens, Kamdhenu, Siddhachal VI, Siddhachal V, Kalpataru Harmony, Siddhachal VIII, Shravan Tarangan, Kalpataru Aura, Kalpataru Towers, Siddhanchal , Kalpataru Estate Phase V , Kalpataru Estate Phase VI, Kalpataru Gardens Phase II, Srishti, Kalpataru Riverside, Kalpataru Pinnacle, Kalpataru Hills, Siddhachal Building No 4, Kalpataru Sparkle, Kalpataru Crest, Nandalaya, Kalpataru Siddhachal Elite, Kalpataru Radiance Aura, Kalpataru Hills Phase II, Kalpataru Sunrise, Kalpataru Crest Avalon, Kalpataru Avana, Kalpataru Solitaire, Kalpataru Regalia, Kalpataru Radiance Lumina , Kalpataru Siddhachal Elegant, Kalpataru Radiance Allura , Kalpataru Yashodhan, Kalpataru Primus, Kalpataru Radiance Brilliance, Kalpataru Immensa, Kalpataru Woodsville, Kalpataru Hills Pristine, Kalpataru Radiance, Kalpataru Paramount, Kalpataru Magnus, Expansia. The property prices in Andheri West are in the range of 18000 to 26000 for Outright for ready and under construction projects.
Kalpataru Limited currently has 5 Ready Possession, 13 Under Construction projects.
Kalpataru Yashodhan has good reviews and the ratings of this project are approximately 4 out of 5.
You can download the brochure of Kalpataru Yashodhan and you can see the latest digital pictures, Floor Plans, Location Plans & Rate History on our website.
The Bookings for the Ready Possession project Kalpataru Yashodhan are open and we can set up a Site Visit any time at your Convenience. Kalpataru Yashodhan is approved by most of the Banks and for more details on the approved bank list, please connect with us.
📊 Expert Analysis
🏢 Kalpataru Limited
Developer: Kalpataru Limited
🏗️ Other Projects by Kalpataru Limited
📸 Project Gallery (36 images)




































🏊 Amenities & Features (14 amenities)
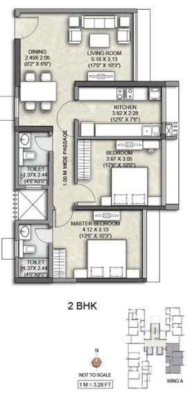
📐 Floor Plans & Site Plans
🔒 Share your details to receive floor plans directly on WhatsApp.


🎥 Project Videos
Other Projects in Andheri West
📐 Approximate Pricing — Area & Bedrooms
| Type | Carpet Area | Indicative Price | Approx. ₹/sqft |
|---|---|---|---|
| 2 BHK | 750 sq.ft. | 3.90 Cr (All Incl.) | — |
| 3 BHK | 1356 sq.ft. | 7.50 Cr (All Incl.) | — |
| 3 BHK | 1398 sq.ft. | 7.50 Cr (All Incl.) | — |
| 3 BHK | 1441 sq.ft. | 7.90 Cr (All Incl.) | — |
🧮 Financial Tools
💰 EMI Calculator
🔄 Rent vs Buy
Should you rent or buy in Andheri West? Compare monthly costs.
❓ Frequently Asked Questions
What is the RERA number for Kalpataru Yashodhan?
The RERA registration number for Kalpataru Yashodhan is P51800000442. You can verify this on the MahaRERA website.
What configurations are available at Kalpataru Yashodhan?
Kalpataru Yashodhan offers 2 BHK, 3 BHK configurations.
What is the price range at Kalpataru Yashodhan?
Prices at Kalpataru Yashodhan start from approximately 3.90 Cr (All Incl.) (indicative only). Contact the developer for final pricing.
When is the possession date for Kalpataru Yashodhan?
The expected possession date for Kalpataru Yashodhan is Dec 2020.
Who is the developer of Kalpataru Yashodhan?
Kalpataru Yashodhan is developed by Kalpataru Limited.
What amenities are available at Kalpataru Yashodhan?
Kalpataru Yashodhan offers amenities including Club House, Grand entrance lobby, Gymnasium, Imported Sanitary Fittings, Intercom/CCTV, POP finished walls, Granite Platform, and more.
Where is Kalpataru Yashodhan located?
Kalpataru Yashodhan is located in Andheri West, Mumbai.
📋 MahaRERA Project Details
Kalpataru Property Ventures Llp






