
Project Overview
Location
New Panvel
Sub-Location
Shilottar Raichur
Status
Sold Out
Rate
₹3,700/sqft
Type
Residential
Floors
3
📝 Project Description
🏗️ Project Details
Kartikya Park provides the perfect urban home for those who find comfort in having both their personal and work spaces within reach. A 4 acres apartment project, we bring the best of Navi Mumbai closer to your heart and home. Space India, proudly presents its new Residential/Commercial Township in New
Panvel, Navi Mumbai "Kartikya Kunj". Located in the well connected area of Karanjade, Plot No. 8, Sec- 3, New Panvel; It provides quick access to JNPT Road, KGM College, Dombala College, ACS College, Raigad Bazaar, Uran Road, and most importantly the upcoming Navi Mumbai International Airport is just a stone’s throw away from the project. It is a modern township with ultra modern facilities. A G+4 Building, being developed under a CIDCO tender plot is the answer to all the needs of your Dream Home. (FEW FLATS AVAILABLE)
🏢 About the Project
These spacious apartments of 1BHK and 2BHK flats of Stilt +3 storey apartments are so specifically designed to guarantee a luxurious living experience to our clients.
📍 About the Location
All the basic amenities in close vicinity.
📊 Expert Analysis
🏢 Space India Builders
Developer: Space India Builders
🏗️ Other Projects by Space India Builders
Space Gold Crest, KarjatSpace World, KarjatKartikya Park II, New PanvelSai Prasad Gardens, New PanvelSiddhivinayak Mahima, TalojaChandra Darshan Hill View, New PanvelBlue Crest , New PanvelSpace Harmony Harigram, New PanvelSai Ashish, UlweRachit Pride, New PanvelSolitaire space, New PanvelBalaji Symphony, New Panvel
📸 Project Gallery (12 images)

Main Image

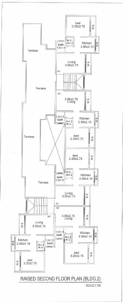
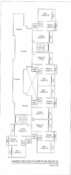
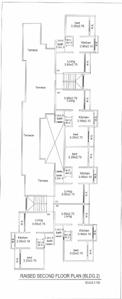
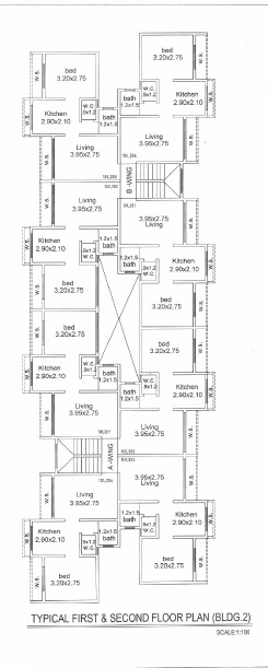
2 BHK Floor plan

floor plan 2

Floor plan

Floor plan 2

Floor plan 3

Floor plan 4

Floor plan 5

Construction image

Construction image 2

Construction image 3

Floor Plan
🏊 Amenities & Features (5 amenities)
Common
(3)
🏃 Jogging Track🧒 Kid's play area🌳 Landscaped garden
Interior
(1)
🏠 POP finished walls
Kitchen
(1)
🪨 Granite Platform
📐 Floor Plans & Site Plans
🔒 Share your details to receive floor plans directly on WhatsApp.

📐 Floor Plan — 🔐 Share details to view
Other Projects in New Panvel
📐 Approximate Pricing — Area & Bedrooms
| Type | Carpet Area | Indicative Price | Approx. ₹/sqft |
|---|---|---|---|
| 2 BHK | 597 sq.ft. | None | — |
| 2 BHK | 647 sq.ft. | None | — |
⚠️ Disclaimer: All prices listed above are approximate and indicative only,
sourced from publicly available information. Final pricing is determined and communicated
exclusively by the Developer at their registered office. Mumbai Property Exchange makes no
warranty regarding accuracy and accepts no liability — no queries on pricing shall be
entertained.
🧮 Financial Tools
💰 EMI Calculator
—
Monthly EMI
—
Loan Amount
—
Total Interest
🔄 Rent vs Buy
Should you rent or buy in New Panvel? Compare monthly costs.
—
Monthly Rent Cost
—
Monthly Buy Cost (EMI)
❓ Frequently Asked Questions
What configurations are available at Kartikya Park II?
Kartikya Park II offers 2 BHK configurations.
What is the price per sq.ft. at Kartikya Park II?
The approximate price per sq.ft. at Kartikya Park II is ₹3700. Actual rates may vary.
Who is the developer of Kartikya Park II?
Kartikya Park II is developed by Space India Builders.
What amenities are available at Kartikya Park II?
Kartikya Park II offers amenities including Jogging Track, Kid's play area, Landscaped garden, POP finished walls, Granite Platform, and more.
Where is Kartikya Park II located?
Kartikya Park II is located in New Panvel, Mumbai.
📊 Property Rates in New Panvel
₹3,700/sqft
This Project Rate
⏳ Loading market data...
🏘️ Properties in New Panvel
⏳ Loading properties in New Panvel...






