
Project Overview
Location
Ghansoli
Sub-Location
Sector-6, Plot No.53/54
Status
Sold Out
Type
Residential
Floors
7
📝 Project Description
🏗️ Project Details
Progressive Signature is three 7 - storied buildings comprising of 2 / 3 BHK Designer Flats.
🏢 About the Project
Basic amenities are provided by the project.Building consisting of 2bhk and 3bhk apartments.. of approximate areas of 1100/-sq.ft to 1300/-sq.ft, the rate is around 56 lac.
📍 About the Location
Ideally located with all the conviences around the corner.
🗺️ Proximity & Distances
Airport
90 min
Railway Station
15-20 min
📊 Expert Analysis
📈 Price History
4/11/2006 - Rs.2200/-
9/11/2006 - Rs.2350/-
10/19/2006 - Rs.2450/-
11/20/2006 - Rs.2600/-
12/12/2006 - Rs.2850/-
3/14/2007 - Rs.3050/-
4/5/2007 - Rs.3250/-
8/3/2007 - Rs.3500/-
9/13/2007 - Rs.3700/-
11/8/2007 - Rs.3750/-
9/11/2006 - Rs.2350/-
10/19/2006 - Rs.2450/-
11/20/2006 - Rs.2600/-
12/12/2006 - Rs.2850/-
3/14/2007 - Rs.3050/-
4/5/2007 - Rs.3250/-
8/3/2007 - Rs.3500/-
9/13/2007 - Rs.3700/-
11/8/2007 - Rs.3750/-
🏢 Progressive Group
Developer: Progressive Group
🏗️ Other Projects by Progressive Group
Progressive Era, KoparkhairneProgressive One, VashiProgressive Aum, VashiProgressive Prive, UlweMeera Angan, UlweProgressives Crest, KoparkhairneProgressives Viva, VashiProgressives Icon, UlweProgressive Crown, KoparkhairneProgressive Cottage, KoparkhairneProgressive Highness, SanpadaSea Lounge, Belapur
📸 Project Gallery (5 images)

Main Image

Layout Plan

7th Feb 2012

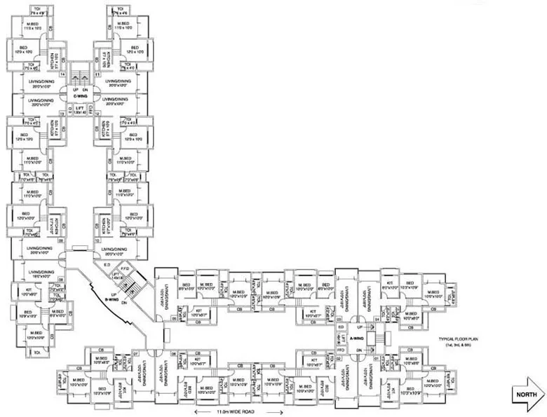
Floor Plan

Site Plan
🏊 Amenities & Features (3 amenities)
Common
(1)
🏢 High speed elevators
Interior
(2)
🏠 Imported Sanitary Fittings🏠 POP finished walls
📐 Floor Plans & Site Plans
🔒 Share your details to receive floor plans directly on WhatsApp.

📐 Floor Plan — 🔐 Share details to view

🗺️ Site Plan — 🔐 Share details to view
Other Projects in Ghansoli
📐 Approximate Pricing — Area & Bedrooms
| Type | Carpet Area | Indicative Price | Approx. ₹/sqft |
|---|---|---|---|
| 2 BHK | None sq.ft. | None | — |
| 2 BHK | None sq.ft. | None | — |
| 3 BHK | None sq.ft. | None | — |
| 3 BHK | None sq.ft. | None | — |
⚠️ Disclaimer: All prices listed above are approximate and indicative only,
sourced from publicly available information. Final pricing is determined and communicated
exclusively by the Developer at their registered office. Mumbai Property Exchange makes no
warranty regarding accuracy and accepts no liability — no queries on pricing shall be
entertained.
🧮 Financial Tools
💰 EMI Calculator
—
Monthly EMI
—
Loan Amount
—
Total Interest
🔄 Rent vs Buy
Should you rent or buy in Ghansoli? Compare monthly costs.
—
Monthly Rent Cost
—
Monthly Buy Cost (EMI)
❓ Frequently Asked Questions
What configurations are available at Progressive Signature?
Progressive Signature offers 2 BHK, 3 BHK configurations.
Who is the developer of Progressive Signature?
Progressive Signature is developed by Progressive Group.
What amenities are available at Progressive Signature?
Progressive Signature offers amenities including High speed elevators, Imported Sanitary Fittings, POP finished walls, and more.
Where is Progressive Signature located?
Progressive Signature is located in Ghansoli, Mumbai.
📊 Property Rates in Ghansoli
⏳ Loading market data...
🏘️ Properties in Ghansoli
⏳ Loading properties in Ghansoli...





