
Project Overview
🎥 Project Video
+ 1 more video — see Videos tab
📝 Project Description
🏗️ Project Details
Signia High is a project that brings to you homes with excellent location advantages blended with warmth and comfort. Imagine enjoying a space expedition and wild-life safari, in the same evening or you glancing through your windows that overlooks the green scape of Borivali National Park and the western Mumbai skyline. If this excites you then take off on a celestial trip amidst the clouds. Ascend to Signia High, where the sky-kissed spacious apartments with world-class amenities await you at Thakur Complex, Kandivali East.
Signia High is a 30 storey (Podium + Stilt + 28 Habitable floors) Ready Possession Project, 3 apartments per floor and the location is Nr Borivali Telephone Exchange, W E H, Borivali East and is developed by Sunteck Realty Limited. Signia High was launched in Aug 2010.
Ready Possession with OC, No GST
Only 81 UBER LUXURY APARTMENTS
Signia High is RERA approved has the Registration Number bearing P51800007984.
For Virtual Tour Of Sunteck Signia High, Kindly, CLICK HERE
Signia High is tagged as Self Use / Lifestyle Property / Premium Property / RERA Approved.
Sunteck Realty Limited also has other under construction and ready possession and sold out projects like Signia Ocean, Signature Island, Signia Pearl, Signia Isles, Signia High, Signia Waterfront, Sunteck City Avenue 1, Sunteck City Avenue 2, Signia Pride, Sunteck Gilbird, Sunteck West World.
Sunteck Realty Limited currently has 4 Ready Possession, 5 Under Construction projects.
The property prices in Borivali East are in the range of 11000 to 13500 for Outright for ready and under construction projects.
Signia High has good reviews and the ratings of this project are approximately 4.5 out of 5.
Download the brochure and video of Signia High and you can see the latest
digital pictures, Floor Plans, Location Plans & Rate History on our
website.
The Bookings for the Ready Possession project Signia High are open and we can set up a Site Visit any time at your Convenience.
🏢 About the Project
📍 About the Location
📊 Expert Analysis
🏢 Sunteck Realty Limited
Developer: Sunteck Realty Limited
🏗️ Other Projects by Sunteck Realty Limited
📸 Project Gallery (24 images)
























🏊 Amenities & Features (13 amenities)
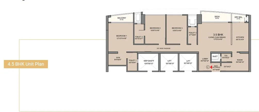
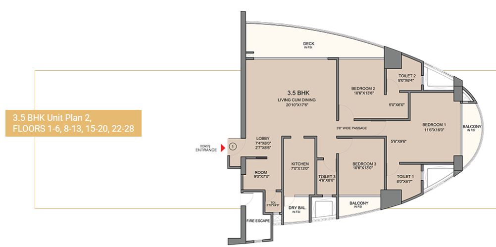
📐 Floor Plans & Site Plans
🔒 Share your details to receive floor plans directly on WhatsApp.


🎥 Project Videos
Other Projects in Borivali East
📐 Approximate Pricing — Area & Bedrooms
| Type | Carpet Area | Indicative Price | Approx. ₹/sqft |
|---|---|---|---|
| 3½ BHK | 1627 sq.ft. | 4.77 Cr | ₹29,317/sqft |
🧮 Financial Tools
💰 EMI Calculator
🔄 Rent vs Buy
Should you rent or buy in Borivali East? Compare monthly costs.
❓ Frequently Asked Questions
What is the RERA number for Signia High?
The RERA registration number for Signia High is P51800007984. You can verify this on the MahaRERA website.
What configurations are available at Signia High?
Signia High offers 3½ BHK configurations.
What is the price range at Signia High?
Prices at Signia High start from approximately 4.77 Cr (indicative only). Contact the developer for final pricing.
Who is the developer of Signia High?
Signia High is developed by Sunteck Realty Limited.
What amenities are available at Signia High?
Signia High offers amenities including Grand entrance lobby, Gymnasium, High speed elevators, Imported Sanitary Fittings, Intercom/CCTV, POP finished walls, Granite Platform, Multi Purpose Hall, and more.
Where is Signia High located?
Signia High is located in Borivali East, Mumbai.
📋 MahaRERA Project Details
Sunteck Realty Limited






