
Project Overview
Location
Kurla
Sub-Location
Nehru road, Kurla east
Status
Sold Out
Type
Residential
Floors
7
📝 Project Description
🏗️ Project Details
Thermal is one of the projects developed by Haware Engineers and Builders Pvt. Ltd. and enjoys an exclusive surrounding.
🏢 About the Project
Thermal is a 7 storey residential building which offers all the basic amenities. It comprises of 1bhk and 2bhk apartments..
📍 About the Location
It is proximately close to station, Markets, Schools, Colleges etc.
🗺️ Proximity & Distances
Airport
120 min
Railway Station
15 min
📊 Expert Analysis
📈 Price History
10/17/2006 - Rs.4200/-
11/24/2006 - Rs.5000/-
11/24/2006 - Rs.5000/-
🏢 Haware
Developer: Haware
🏗️ Other Projects by Haware
HAWARE GRANDE, LonavalaHaware Sky, ChemburHaware Elinor, KalamboliHaware Altura, VikhroliHaware Amara, VikhroliHaware IPSA, Ghatkopar EastHaware Intelligentia Sigma, VikhroliHaware Erawah IPSA, Ghatkopar EastHaware Paradise, KalyanHaware 16 - Grand Edifice, Goregaon EastTitanium Tower, Thane WestTulip, Thane West
📸 Project Gallery (4 images)

Main Image

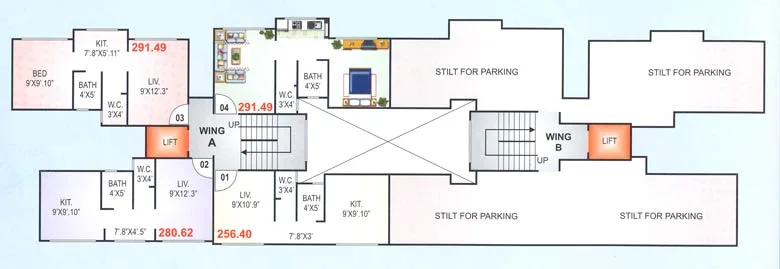
6th and 7th Floor Plan

Floor Plan

Site Plan
🏊 Amenities & Features (3 amenities)
Common
(1)
🏢 High speed elevators
Interior
(2)
🏠 Imported Sanitary Fittings🏠 POP finished walls
📐 Floor Plans & Site Plans
🔒 Share your details to receive floor plans directly on WhatsApp.

📐 Floor Plan — 🔐 Share details to view

🗺️ Site Plan — 🔐 Share details to view
Other Projects in Kurla
📐 Approximate Pricing — Area & Bedrooms
| Type | Carpet Area | Indicative Price | Approx. ₹/sqft |
|---|---|---|---|
| 1 BHK | None sq.ft. | None | — |
| 1 BHK | None sq.ft. | None | — |
| 2 BHK | None sq.ft. | None | — |
⚠️ Disclaimer: All prices listed above are approximate and indicative only,
sourced from publicly available information. Final pricing is determined and communicated
exclusively by the Developer at their registered office. Mumbai Property Exchange makes no
warranty regarding accuracy and accepts no liability — no queries on pricing shall be
entertained.
🧮 Financial Tools
💰 EMI Calculator
—
Monthly EMI
—
Loan Amount
—
Total Interest
🔄 Rent vs Buy
Should you rent or buy in Kurla? Compare monthly costs.
—
Monthly Rent Cost
—
Monthly Buy Cost (EMI)
❓ Frequently Asked Questions
What configurations are available at Thermal?
Thermal offers 1 BHK, 2 BHK configurations.
Who is the developer of Thermal?
Thermal is developed by Haware.
What amenities are available at Thermal?
Thermal offers amenities including High speed elevators, Imported Sanitary Fittings, POP finished walls, and more.
Where is Thermal located?
Thermal is located in Kurla, Mumbai.
📊 Property Rates in Kurla
⏳ Loading market data...
🏘️ Properties in Kurla
⏳ Loading properties in Kurla...
Kurla · Sold Out




.webp)

