
Project Overview
Location
Bandra West
Sub-Location
Pali Hill
Status
Sold Out
Type
Residential
Floors
6
📝 Project Description
🏗️ Project Details
Deepika, one of the exclusive buildings in Pali Hill, only of duplex, with modern amenities and facilities.
🏢 About the Project
Deepika is one of the finest buildings in Pali Hill area. It is a building only of duplex which makes it an exclusive building with only three families. The lay out is very well planned with modern facilities.
📍 About the Location
Deepika is situated in one of the prime locations of Bandra West known as Pali Hill surrounded with lots of greenery around. Most of the conveniences are all round the corner with Pali Naka market on one side and Carter Road on the other side.
🗺️ Proximity & Distances
Airport
20 Domestic Airport, 40 International Airport.
Railway Station
10-15 Min
📊 Expert Analysis
📈 Price History
5/25/2006 - Rs.18000/-
9/23/2006 - Rs.20000/-
10/5/2007 - Rs.24000/-
12/5/2007 - Rs.25000/-
9/23/2006 - Rs.20000/-
10/5/2007 - Rs.24000/-
12/5/2007 - Rs.25000/-
🏢 Arth Housing Developers Ltd
Developer: Arth Housing Developers Ltd
🏗️ Other Projects by Arth Housing Developers Ltd
📸 Project Gallery (8 images)

Main Image

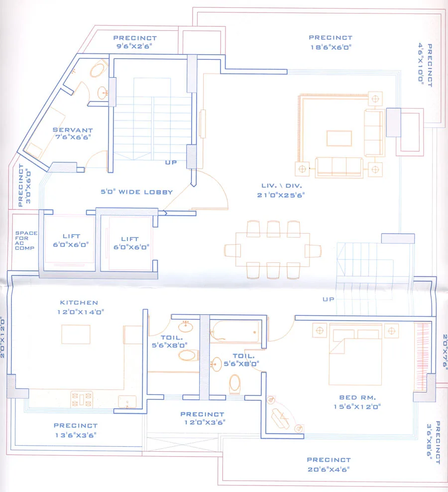
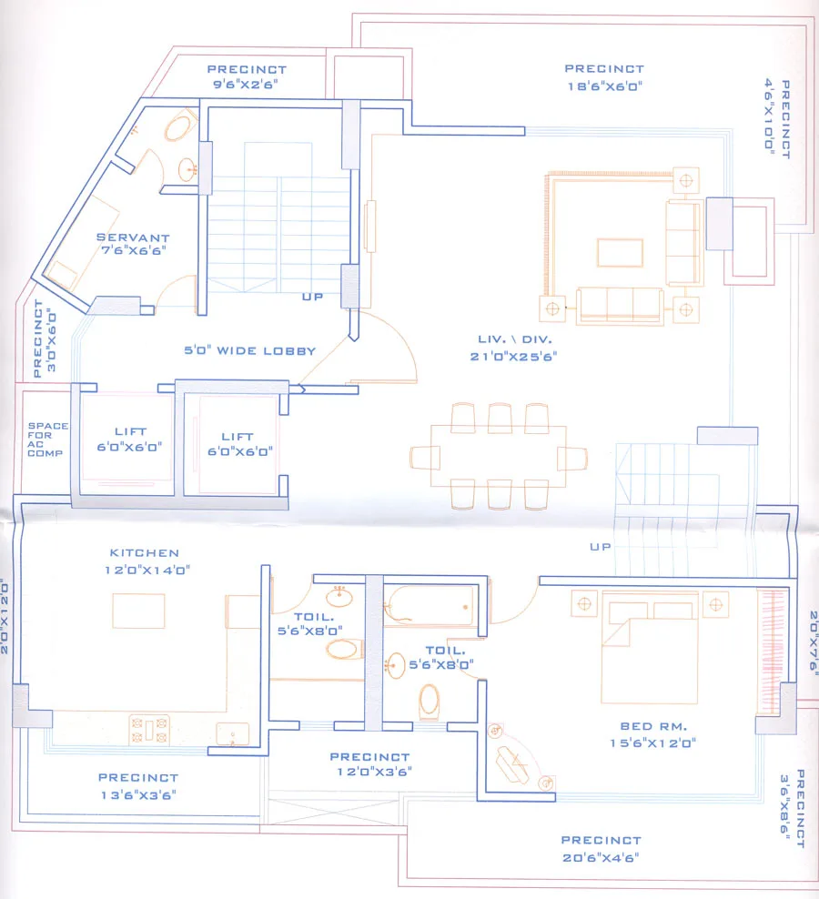
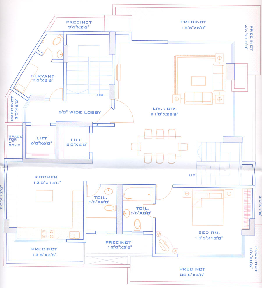
Duplex floor plan

25 Nov 2006

9 July 2007

5 Nov 2007

14th Nov 2011

Floor Plan

Site Plan
🏊 Amenities & Features (5 amenities)
General
(1)
✨ None
Common
(2)
🏢 Grand entrance lobby🏢 High speed elevators
Interior
(1)
🏠 Imported Sanitary Fittings
Special
(1)
⭐ Intercom/CCTV
📐 Floor Plans & Site Plans
🔒 Share your details to receive floor plans directly on WhatsApp.

📐 Floor Plan — 🔐 Share details to view

🗺️ Site Plan — 🔐 Share details to view
Other Projects in Bandra West
📐 Approximate Pricing — Area & Bedrooms
| Type | Carpet Area | Indicative Price | Approx. ₹/sqft |
|---|---|---|---|
| Duplex | None sq.ft. | None | — |
⚠️ Disclaimer: All prices listed above are approximate and indicative only,
sourced from publicly available information. Final pricing is determined and communicated
exclusively by the Developer at their registered office. Mumbai Property Exchange makes no
warranty regarding accuracy and accepts no liability — no queries on pricing shall be
entertained.
🧮 Financial Tools
💰 EMI Calculator
—
Monthly EMI
—
Loan Amount
—
Total Interest
🔄 Rent vs Buy
Should you rent or buy in Bandra West? Compare monthly costs.
—
Monthly Rent Cost
—
Monthly Buy Cost (EMI)
❓ Frequently Asked Questions
What configurations are available at Deepika?
Deepika offers Duplex configurations.
When is the possession date for Deepika?
The expected possession date for Deepika is Jan 2008.
Who is the developer of Deepika?
Deepika is developed by Arth Housing Developers Ltd .
What amenities are available at Deepika?
Deepika offers amenities including Grand entrance lobby, High speed elevators, Imported Sanitary Fittings, Intercom/CCTV, and more.
Where is Deepika located?
Deepika is located in Bandra West, Mumbai.
📊 Property Rates in Bandra West
⏳ Loading market data...
🏘️ Properties in Bandra West
⏳ Loading properties in Bandra West...




.webp)

