
Project Overview
Location
Thane West
Sub-Location
Ghodbunder Road, Soham Garden, Manpada
Status
Sold Out
Type
Residential
Floors
15
📝 Project Description
🏗️ Project Details
Fairytale, a project by SOHAM, the group with a 25 year tradition of excellence is your assurance of quality and reliability. Fairytale comprising of 3 towers- Marigold, Morning Glory & Daffodil.It offers the latest amenities and facilities offering a complete lifestyle and innovatively transform ing Thane's skyline.
🏢 About the Project
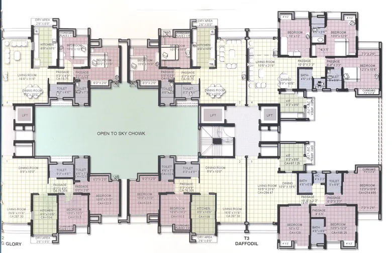
This complex consists of 3 towers-Marigold, Morning Glory & Daffodil with identical layouts each of stilt + 15 storeyed comprising of 2 bhk and 3 bhk flats.
📍 About the Location
Situated in the lush green surrounding of Godhbunder road, away from the dust, pollution and the maddening crowd.The proximity to the railway station and the main markets in the city is excellent. Schools, colleges, hospitals, shopping malls, theatres, entertainment centres are all close by.
🗺️ Proximity & Distances
Airport
60 - 90 both Domestic and International
Railway Station
15 - 20 Min Drive
Hospital
Lok Puram,Singhania, Sahiyog Hospital
School
JK Singhania & D.A.V ICSC School, Little Flavours High School, Holy Cross Girls School.
📊 Expert Analysis
📈 Price History
9/5/2005 - Rs. 2200/-
2/18/2006 - Rs.2400/-
3/16/2006 - Rs.2500/-
4/14/2006 - Rs.2600/-
7/11/2006 - Rs.2800/-
8/12/2006 - Rs.2900/-
9/5/2006 - Rs.3000/-
10/14/2006 - Rs.3200/-
11/27/2006 - Rs.3300/-
1/27/2007 - Rs.3400/-
6/28/2007 - Rs.3600/-
2/18/2006 - Rs.2400/-
3/16/2006 - Rs.2500/-
4/14/2006 - Rs.2600/-
7/11/2006 - Rs.2800/-
8/12/2006 - Rs.2900/-
9/5/2006 - Rs.3000/-
10/14/2006 - Rs.3200/-
11/27/2006 - Rs.3300/-
1/27/2007 - Rs.3400/-
6/28/2007 - Rs.3600/-
🏢 Soham Builders Ltd.
Developer: Soham Builders Ltd.
🏗️ Other Projects by Soham Builders Ltd.
Tropical Elite, Thane WestTropical Lagoon, Thane WestTropical Lagoon, Thane WestTropical Lagoon , Thane WestFalcon Court, Mulund EastCrystal Spires, Thane WestHarmony, Mulund EastSoham Residency, Mulund EastParijat Gardens, Thane WestBrighton, Mulund EastCastlerock, Mulund EastGlenmorgan, Thane West
📸 Project Gallery (11 images)

Main Image

14 Nov 2005

14 March 2006

18 October 2006

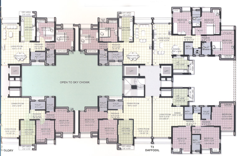
floor plan

30 Dec 2006

31 july 2007

19 Dec 2007

Main Image

Floor Plan

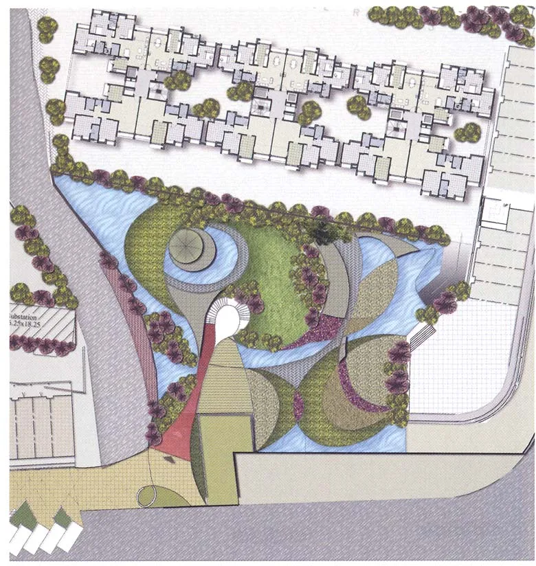
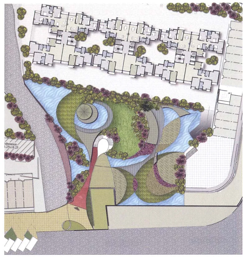
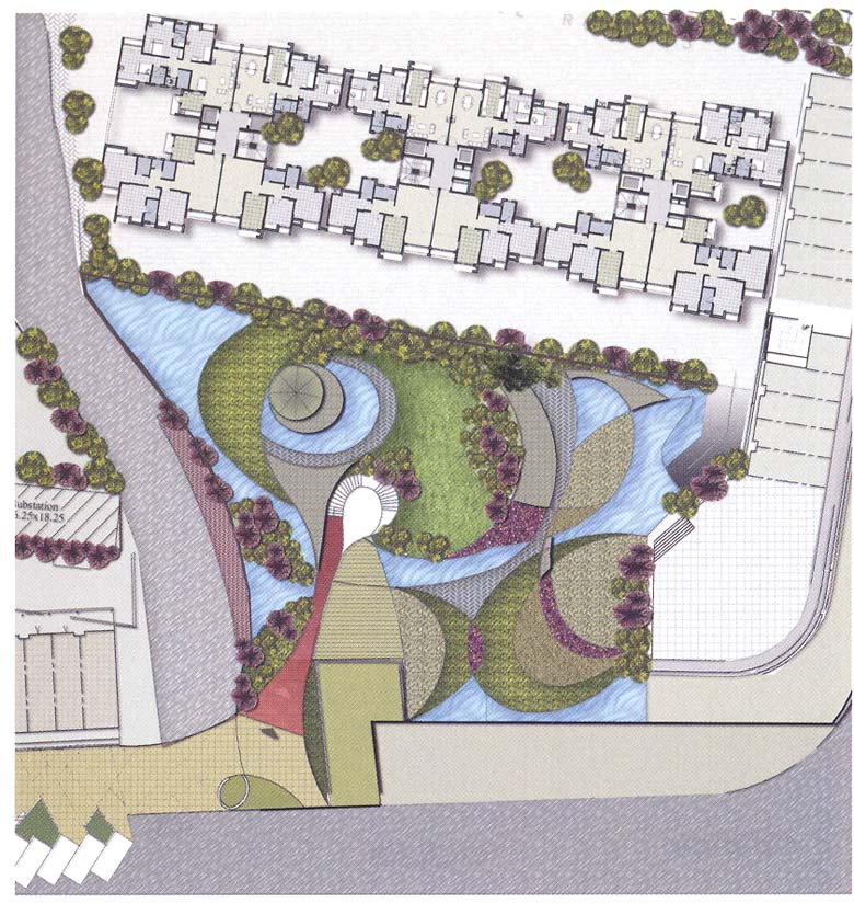
Site Plan
🏊 Amenities & Features (6 amenities)
Common
(4)
🏢 Business Centre🏢 Grand entrance lobby🏋️ Health Club🏊 Swimming Pool
Special
(1)
⭐ Intercom/CCTV
General
(1)
✨ None
📐 Floor Plans & Site Plans
🔒 Share your details to receive floor plans directly on WhatsApp.

📐 Floor Plan — 🔐 Share details to view

🗺️ Site Plan — 🔐 Share details to view
Other Projects in Thane West
📐 Approximate Pricing — Area & Bedrooms
| Type | Carpet Area | Indicative Price | Approx. ₹/sqft |
|---|---|---|---|
| 2 BHK | None sq.ft. | None | — |
| 3 BHK | None sq.ft. | None | — |
⚠️ Disclaimer: All prices listed above are approximate and indicative only,
sourced from publicly available information. Final pricing is determined and communicated
exclusively by the Developer at their registered office. Mumbai Property Exchange makes no
warranty regarding accuracy and accepts no liability — no queries on pricing shall be
entertained.
🧮 Financial Tools
💰 EMI Calculator
—
Monthly EMI
—
Loan Amount
—
Total Interest
🔄 Rent vs Buy
Should you rent or buy in Thane West? Compare monthly costs.
—
Monthly Rent Cost
—
Monthly Buy Cost (EMI)
❓ Frequently Asked Questions
What configurations are available at Fairytale?
Fairytale offers 2 BHK, 3 BHK configurations.
Who is the developer of Fairytale?
Fairytale is developed by Soham Builders Ltd..
What amenities are available at Fairytale?
Fairytale offers amenities including Business Centre, Grand entrance lobby, Health Club, Intercom/CCTV, and more.
Where is Fairytale located?
Fairytale is located in Thane West, Mumbai.
📊 Property Rates in Thane West
⏳ Loading market data...
🏘️ Properties in Thane West
⏳ Loading properties in Thane West...
Thane West · Sold Out




.webp)

