
Project Overview
Location
Santacruz West
Sub-Location
North Avenue
Status
Sold Out
Type
Residential
Floors
10
📝 Project Description
🏗️ Project Details
Madhuniketan is one of the project developed by Vijay Associates Wadhwa and enjoys an exclusive surrounding.
🏢 About the Project
Spacious 4bhk apartment in a 10 storey tower provided with top of the line amenities.
📍 About the Location
Located in an upmarket residential neighbourhood, enjoy close proximity to the Jain Derasar.
🗺️ Proximity & Distances
Airport
30 min
Railway Station
10-15 min
⭐ Project Ratings
📈 Price History
11/5/2007 - Rs.17500/-
🏢 The Wadhwa Group
Developer: The Wadhwa Group
🏗️ Other Projects by The Wadhwa Group
📸 Project Gallery (12 images)

Main Image

24 Nov 2006

7 Feb 2007

7 July 2007

26 Nov 2006

2 Nov 2007

7 March 2008

Main Image

28 Jan 2009

11th Nov 2011

Floor Plan

Site Plan
🏊 Amenities & Features (3 amenities)
Common
(1)
🏢 High speed elevators
Interior
(2)
🏠 Imported Sanitary Fittings🏠 POP finished walls
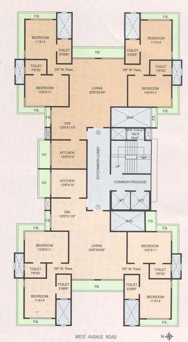
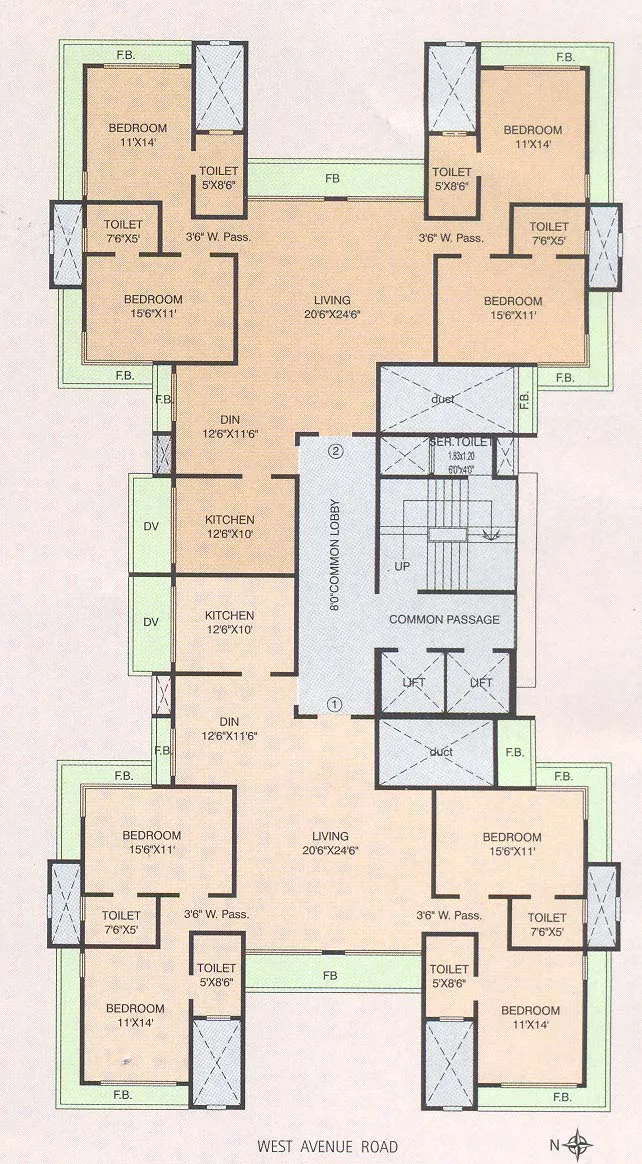
📐 Floor Plans & Site Plans
🔒 Share your details to receive floor plans directly on WhatsApp.

📐 Floor Plan — 🔐 Share details to view

🗺️ Site Plan — 🔐 Share details to view
Other Projects in Santacruz West
📐 Approximate Pricing — Area & Bedrooms
| Type | Carpet Area | Indicative Price | Approx. ₹/sqft |
|---|---|---|---|
| 4 BHK | None sq.ft. | None | — |
⚠️ Disclaimer: All prices listed above are approximate and indicative only,
sourced from publicly available information. Final pricing is determined and communicated
exclusively by the Developer at their registered office. Mumbai Property Exchange makes no
warranty regarding accuracy and accepts no liability — no queries on pricing shall be
entertained.
🧮 Financial Tools
💰 EMI Calculator
—
Monthly EMI
—
Loan Amount
—
Total Interest
🔄 Rent vs Buy
Should you rent or buy in Santacruz West? Compare monthly costs.
—
Monthly Rent Cost
—
Monthly Buy Cost (EMI)
❓ Frequently Asked Questions
What configurations are available at Madhuniketan?
Madhuniketan offers 4 BHK configurations.
When is the possession date for Madhuniketan?
The expected possession date for Madhuniketan is Feb 2009.
Who is the developer of Madhuniketan?
Madhuniketan is developed by The Wadhwa Group.
What amenities are available at Madhuniketan?
Madhuniketan offers amenities including High speed elevators, Imported Sanitary Fittings, POP finished walls, and more.
Where is Madhuniketan located?
Madhuniketan is located in Santacruz West, Mumbai.
📊 Property Rates in Santacruz West
⏳ Loading market data...
🏘️ Properties in Santacruz West
⏳ Loading properties in Santacruz West...






