
📋 Quick Facts: Ujval
| Developer | Paranjape |
|---|---|
| Location | Goregaon East, Pandurang Wadi Road No 5, Mumbai |
| Price | ₹29,694/sq.ft. |
| RERA Number | P51800000657 |
| Possession Date | Dec 2020 |
| Project Status | Sold Out |
| Project Type | Residential |
| Floors | 9 |
| Zone Average Rate | ₹30,481/sq.ft. (350 projects in zone) |
Project Overview
📝 Project Description
🏗️ Project Details
Ujval is a 9 storey Under Construction Project and the location is Pandurang Wadi Road No 5, Goregaon East and is developed by Paranjape Schemes Construction limited. Ujval is a beautiful project, a well-planned living space which is the hallmark of thoughtfully laid out flats at reasonable prices. Ujval brings a lifestyle of beautiful apartments at Goregaon.
Ujval was launched in May 2014 and the possession of the same is likely to be in Dec 2019.
Ujval is RERA approved has the Registration Number bearing P51800000657.
Ujval Schemes Construction limited also has other under construction and ready possession and sold out projects like Royal Court, Geetanjali, Vighna Rajendra, Prayog, Snehdeep, Ujval, 127 Upper East.
Paranjape Schemes Construction limited currently has 2 Under Construction projects.
The property prices in Goregaon East are in the range of 14000 to 19000 for Outright for ready and under construction projects.
Download the brochure of Ujval and you can see the latest digital pictures, Floor Plans, Location Plans & Rate History on our website. The Bookings for the Under Construction project Ujval are open and we can set up a Site Visit any time at your Convenience.Ujval is approved by most of the Banks and for more details on the approved bank list, please connect with us.
📋 Project Remarks
🗺️ Proximity & Distances
⭐ Project Ratings
🏢 Paranjape
Developer: Paranjape
🏗️ Other Projects by Paranjape
📸 Project Gallery (15 images)















🏊 Amenities & Features (11 amenities)
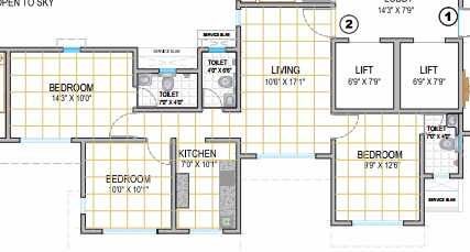
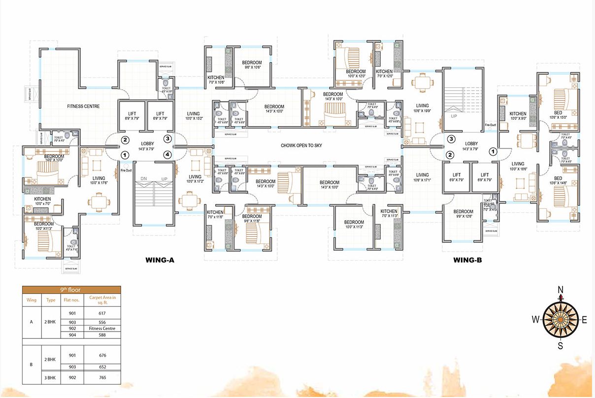
📐 Floor Plans & Site Plans
🔒 Share your details to receive floor plans directly on WhatsApp.


Other Projects in Goregaon East
📐 Approximate Pricing — Area & Bedrooms
| Type | Carpet Area | Indicative Price | Approx. ₹/sqft |
|---|---|---|---|
| 2 BHK | 494 sq.ft. | 1.48 Cr | ₹29,959/sqft |
| 2 BHK | 699 sq.ft. | 2.05 Cr | ₹29,327/sqft |
| 3 BHK | 765 sq.ft. | 2.29 Cr | ₹29,934/sqft |
| 3 BHK | 785 sq.ft. | 2.32 Cr | ₹29,554/sqft |
🧭 Project Compass
How far is Ujval from your daily life? Add your anchors to see commute times.
🧮 Financial Tools
💰 EMI Calculator
🔄 Rent vs Buy
Should you rent or buy in Goregaon East? Compare monthly costs.
❓ Frequently Asked Questions
What is the RERA number for Ujval?
The RERA registration number for Ujval is P51800000657. You can verify this on the MahaRERA website.
What configurations are available at Ujval?
Ujval offers 2 BHK, 3 BHK configurations.
What is the price range at Ujval?
Prices at Ujval start from approximately 1.48 Cr (indicative only). Contact the developer for final pricing.
What is the price per sq.ft. at Ujval?
The approximate price per sq.ft. at Ujval is ₹29694. Actual rates may vary.
When is the possession date for Ujval?
The expected possession date for Ujval is Dec 2020.
Who is the developer of Ujval?
Ujval is developed by Paranjape .
What amenities are available at Ujval?
Ujval offers amenities including Grand entrance lobby, Health Club, High speed elevators, Imported Sanitary Fittings, Intercom/CCTV, POP finished walls, Granite Platform, and more.
Where is Ujval located?
Ujval is located in Goregaon East, Mumbai.
📋 MahaRERA Project Details
Paranjape Schemes (Construction) Ltd






