
Project Overview
Location
Khar West
Sub-Location
17th Road
Status
Sold Out
Type
Residential
Floors
11
📝 Project Description
🏗️ Project Details
Eminente II is one of the projects developed by Ekta Shelters and enjoys an exclusive location.
🏢 About the Project
3 BHK Luxurious Apartments in Phase II; Essense of sophistication; Top class Amenities : Italian Marble flooring, Designer Kitchen; Imported Marble in Bathroom etc. The higher floors may have come up with Duplex ( 10th & 11th )
📍 About the Location
Ideally located with all the conveniences around the corner.
🗺️ Proximity & Distances
Airport
60 min
Railway Station
15-20 min
📊 Expert Analysis
🏢 Ekta World
Developer: Ekta World
🏗️ Other Projects by Ekta World
📸 Project Gallery (8 images)

Main Image

2nd Feb 2008

1st Aug 2008

29 Jan 2009

25 June 2009

11th Nov 2011

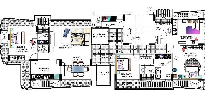
Floor Plan

Site Plan
🏊 Amenities & Features (3 amenities)
Common
(1)
🏢 High speed elevators
Interior
(2)
🏠 Imported Sanitary Fittings🏠 POP finished walls
📐 Floor Plans & Site Plans
🔒 Share your details to receive floor plans directly on WhatsApp.

📐 Floor Plan — 🔐 Share details to view

🗺️ Site Plan — 🔐 Share details to view
Other Projects in Khar West
📐 Approximate Pricing — Area & Bedrooms
| Type | Carpet Area | Indicative Price | Approx. ₹/sqft |
|---|---|---|---|
| 3 BHK | None sq.ft. | None | — |
⚠️ Disclaimer: All prices listed above are approximate and indicative only,
sourced from publicly available information. Final pricing is determined and communicated
exclusively by the Developer at their registered office. Mumbai Property Exchange makes no
warranty regarding accuracy and accepts no liability — no queries on pricing shall be
entertained.
🧮 Financial Tools
💰 EMI Calculator
—
Monthly EMI
—
Loan Amount
—
Total Interest
🔄 Rent vs Buy
Should you rent or buy in Khar West? Compare monthly costs.
—
Monthly Rent Cost
—
Monthly Buy Cost (EMI)
❓ Frequently Asked Questions
What configurations are available at Eminente II?
Eminente II offers 3 BHK configurations.
When is the possession date for Eminente II?
The expected possession date for Eminente II is Nov 2010.
Who is the developer of Eminente II?
Eminente II is developed by Ekta World.
What amenities are available at Eminente II?
Eminente II offers amenities including High speed elevators, Imported Sanitary Fittings, POP finished walls, and more.
Where is Eminente II located?
Eminente II is located in Khar West, Mumbai.
📊 Property Rates in Khar West
⏳ Loading market data...
🏘️ Properties in Khar West
⏳ Loading properties in Khar West...
Khar West · Sold Out






