
Project Overview
📝 Project Description
🏗️ Project Details
📋 Project Remarks
⭐ Project Ratings
🏢 Lotus Group of Companies
Developer: Lotus Group of Companies
🏗️ Other Projects by Lotus Group of Companies
📸 Project Gallery (5 images)





📄 E-Brochures & Documents
🔒 Share your details to receive brochures directly on WhatsApp.
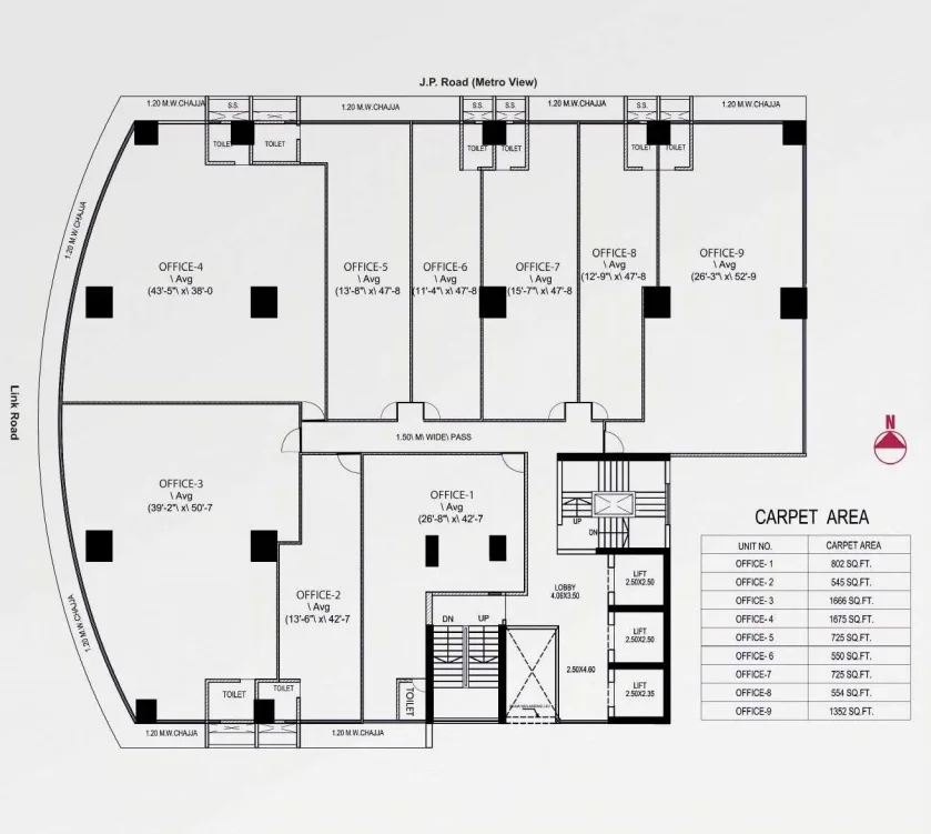
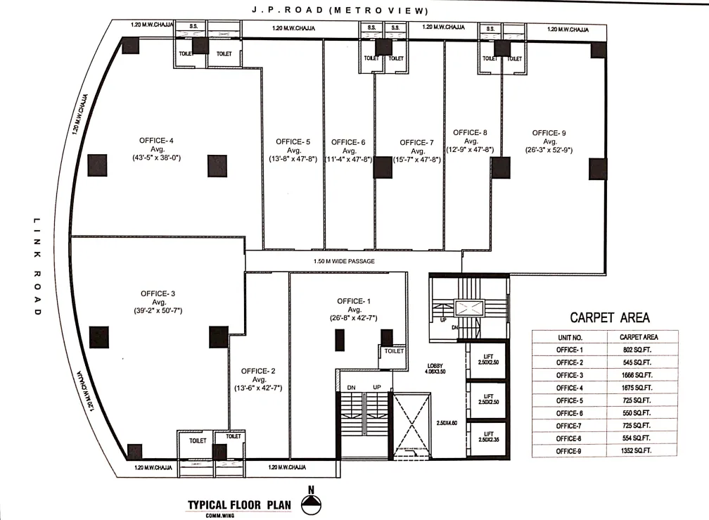
📐 Floor Plans & Site Plans
🔒 Share your details to receive floor plans directly on WhatsApp.


Other Projects in Andheri West
📐 Approximate Pricing — Area & Bedrooms
| Type | Carpet Area | Indicative Price | Approx. ₹/sqft |
|---|---|---|---|
| Office | 1275 sq.ft. | 5.10 Cr ++ | ₹40,000/sqft |
🧮 Financial Tools
💰 EMI Calculator
🔄 Rent vs Buy
Should you rent or buy in Andheri West? Compare monthly costs.
❓ Frequently Asked Questions
What is the RERA number for Lotus Link Square?
The RERA registration number for Lotus Link Square is P51800005163. You can verify this on the MahaRERA website.
What configurations are available at Lotus Link Square?
Lotus Link Square offers Office configurations.
What is the price range at Lotus Link Square?
Prices at Lotus Link Square start from approximately 5.10 Cr ++ (indicative only). Contact the developer for final pricing.
Who is the developer of Lotus Link Square?
Lotus Link Square is developed by Lotus Group of Companies.
Where is Lotus Link Square located?
Lotus Link Square is located in Andheri West, Mumbai.
📋 MahaRERA Project Details
Lotus Grih Nirman Private Limited






