
Project Overview
📝 Project Description
🏗️ Project Details
📋 Project Remarks
⭐ Project Ratings
🏢 CCI Projects Pvt Ltd
Developer: CCI Projects Pvt Ltd
🏗️ Other Projects by CCI Projects Pvt Ltd
📸 Project Gallery (17 images)

















🏊 Amenities & Features (15 amenities)
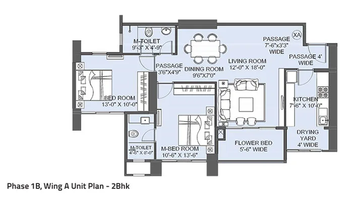
📐 Floor Plans & Site Plans
🔒 Share your details to receive floor plans directly on WhatsApp.


Other Projects in Borivali East
📐 Approximate Pricing — Area & Bedrooms
| Type | Carpet Area | Indicative Price | Approx. ₹/sqft |
|---|---|---|---|
| 2 BHK | 898 sq.ft. | None | — |
| 3 BHK | 1153 sq.ft. | None | — |
🧮 Financial Tools
💰 EMI Calculator
🔄 Rent vs Buy
Should you rent or buy in Borivali East? Compare monthly costs.
❓ Frequently Asked Questions
What is the RERA number for Rivali Park ?
The RERA registration number for Rivali Park is P51800003067. You can verify this on the MahaRERA website.
What configurations are available at Rivali Park ?
Rivali Park offers 2 BHK, 3 BHK configurations.
When is the possession date for Rivali Park ?
The expected possession date for Rivali Park is Dec 2018.
Who is the developer of Rivali Park ?
Rivali Park is developed by CCI Projects Pvt Ltd.
What amenities are available at Rivali Park ?
Rivali Park offers amenities including Club House, Grand entrance lobby, Gymnasium, Intercom/CCTV, POP finished walls, Vitrified flooring, Granite Platform, and more.
Where is Rivali Park located?
Rivali Park is located in Borivali East, Mumbai.
📋 MahaRERA Project Details
Cci Projects Private Limited






