
Project Overview
Location
Kandivali West
Sub-Location
Opp Joy Ice cream, Near Hindustan Naka
Status
Sold Out
Type
Residential
Floors
11
📝 Project Description
🏗️ Project Details
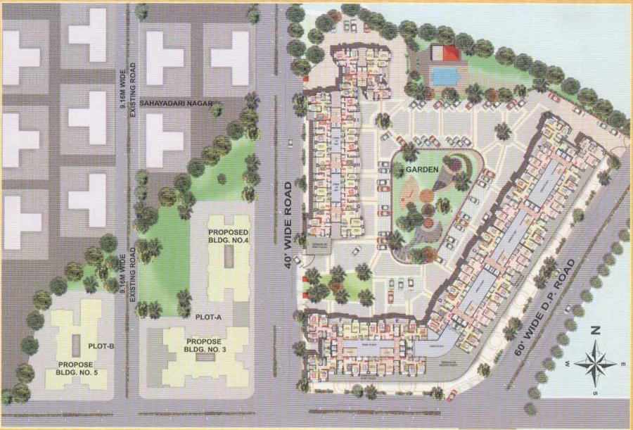
Rock Enclave, a residential complex of 13 buildings comprising of well planned 2 bhk & 3 bhk flats along with modern amenities and facilities.
🏢 About the Project
Rock Enclave is a residential complex of 13 buildings comprising of 2 bhk and 3 bhk flats of various areas ranging from 865 sq.ft to 1205 sq.ft. It has modern amenities and facilities like Swimming pool, landscaped gardens, club house with gymnasium, other amenities like table tennis, meditation/ banquets, steam, sauna etc.Most of the flats that are available are road facing while the Garden facing flats are available on higher floors.
📍 About the Location
This site is in a residential area and very strategically located. Easy accessibility to S.V Road, Link Road, with station just 10-15 min drive. Basic amenities like schools, colleges, markets, hospitals are all in the close vicinity.
🗺️ Proximity & Distances
Airport
45 Min Domestic - 60 Min International
Railway Station
10-15 min
📊 Expert Analysis
📈 Price History
12/4/2005 - Rs.2671/-
2/2/2006 - Rs.2871/-
6/15/2006 - Rs.3071/-
8/18/2006 - Rs.3371/-
10/31/2006 - Rs.3671/-
1/19/2007 - Rs.3901/-
2/6/2007 - Rs.4100/-
2/27/2007 - Rs.4200/-
4/16/2007 - Rs. 4500/-
10/3/2007 - Rs.4700/-
11/22/2007 - Rs.5100/-
2/2/2006 - Rs.2871/-
6/15/2006 - Rs.3071/-
8/18/2006 - Rs.3371/-
10/31/2006 - Rs.3671/-
1/19/2007 - Rs.3901/-
2/6/2007 - Rs.4100/-
2/27/2007 - Rs.4200/-
4/16/2007 - Rs. 4500/-
10/3/2007 - Rs.4700/-
11/22/2007 - Rs.5100/-
🏢 Bhoomi Group
Developer: Bhoomi Group
🏗️ Other Projects by Bhoomi Group
Bhoomi Lakescape, Thane WestBhoomi Acres, Thane WestBhoomi Pratishta, Borivali WestBhoomi Prestige, Santacruz WestSimana, ParelBhoomi Shivam, Kandivali WestBhoomi Samarth, Goregaon EastBhoomi Vandana, Borivali WestBhoomi Diamond, Borivali WestBhoomi Gobind Bhavan, Khar WestBhoomi Harmony, KurlaBhoomi Acres , Thane West
📸 Project Gallery (13 images)

Main Image

Floor Plan

Layout

14 Feb 2006

May 15, 2006

3 September 2006

2 November 2006

16 January 2007

26 June 2007

25th Oct 2007

17th Oct 2011

Floor Plan

Site Plan
🏊 Amenities & Features (6 amenities)
General
(1)
✨ None
Common
(3)
🏢 High speed elevators🏃 Jogging Track🏊 Swimming Pool
Interior
(1)
🏠 POP finished walls
Kitchen
(1)
🪨 Granite Platform
📐 Floor Plans & Site Plans
🔒 Share your details to receive floor plans directly on WhatsApp.

📐 Floor Plan — 🔐 Share details to view

🗺️ Site Plan — 🔐 Share details to view
Other Projects in Kandivali West
📐 Approximate Pricing — Area & Bedrooms
| Type | Carpet Area | Indicative Price | Approx. ₹/sqft |
|---|---|---|---|
| 2 BHK | None sq.ft. | None | — |
| 2 BHK | None sq.ft. | None | — |
| 2 BHK | None sq.ft. | None | — |
| 2 BHK | None sq.ft. | None | — |
| 2 BHK | None sq.ft. | None | — |
| 2 BHK | None sq.ft. | None | — |
| 3 BHK | None sq.ft. | None | — |
| 3 BHK | None sq.ft. | None | — |
⚠️ Disclaimer: All prices listed above are approximate and indicative only,
sourced from publicly available information. Final pricing is determined and communicated
exclusively by the Developer at their registered office. Mumbai Property Exchange makes no
warranty regarding accuracy and accepts no liability — no queries on pricing shall be
entertained.
🧮 Financial Tools
💰 EMI Calculator
—
Monthly EMI
—
Loan Amount
—
Total Interest
🔄 Rent vs Buy
Should you rent or buy in Kandivali West? Compare monthly costs.
—
Monthly Rent Cost
—
Monthly Buy Cost (EMI)
❓ Frequently Asked Questions
What configurations are available at Rock Enclave?
Rock Enclave offers 2 BHK, 3 BHK configurations.
Who is the developer of Rock Enclave?
Rock Enclave is developed by Bhoomi Group .
What amenities are available at Rock Enclave?
Rock Enclave offers amenities including High speed elevators, Jogging Track, Swimming Pool, POP finished walls, Granite Platform, and more.
Where is Rock Enclave located?
Rock Enclave is located in Kandivali West, Mumbai.
📊 Property Rates in Kandivali West
⏳ Loading market data...
🏘️ Properties in Kandivali West
⏳ Loading properties in Kandivali West...






