
Project Overview
Location
Bandra West
Sub-Location
Almeida Park
Status
Sold Out
Type
Residential
Floors
12
📝 Project Description
🏗️ Project Details
Nensey, a residential building offering lavish 4 bedrooms with modern amenities located in Almeida Park filled with tranquility.
🏢 About the Project
Nensey is a 12 storeyed buiding offering modern amenities. This building comprises of 4 bedrooms only with just one apartment per floor.
📍 About the Location
This project is very well located in one of the quietest locations in Bandra West known as Almeida Park
🗺️ Proximity & Distances
Airport
25 min
Railway Station
10 min
📊 Expert Analysis
📈 Price History
9/21/2006 - Rs.16500/-
1/19/2007 - Rs.18000/-
1/19/2007 - Rs.18000/-
🏢 Ekta World
Developer: Ekta World
🏗️ Other Projects by Ekta World
📸 Project Gallery (9 images)

Main Image

7 Feb 2007

9 July 2007

5 Nov 2007

Main Image

12th Sep 2010

14th Nov 2011

Floor Plan

Site Plan
🏊 Amenities & Features (3 amenities)
Common
(1)
🏢 High speed elevators
Interior
(2)
🏠 Imported Sanitary Fittings🏠 POP finished walls
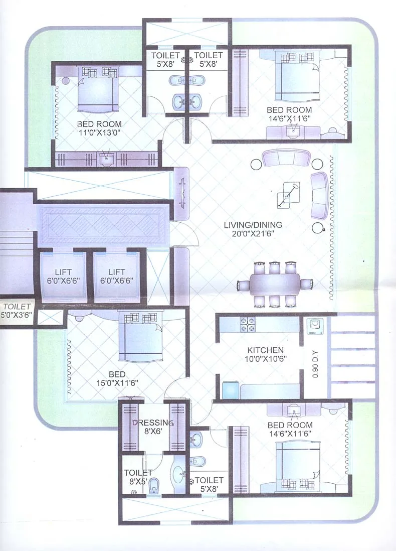
📐 Floor Plans & Site Plans
🔒 Share your details to receive floor plans directly on WhatsApp.

📐 Floor Plan — 🔐 Share details to view

🗺️ Site Plan — 🔐 Share details to view
Other Projects in Bandra West
📐 Approximate Pricing — Area & Bedrooms
| Type | Carpet Area | Indicative Price | Approx. ₹/sqft |
|---|---|---|---|
| Pent House | None sq.ft. | None | — |
⚠️ Disclaimer: All prices listed above are approximate and indicative only,
sourced from publicly available information. Final pricing is determined and communicated
exclusively by the Developer at their registered office. Mumbai Property Exchange makes no
warranty regarding accuracy and accepts no liability — no queries on pricing shall be
entertained.
🧮 Financial Tools
💰 EMI Calculator
—
Monthly EMI
—
Loan Amount
—
Total Interest
🔄 Rent vs Buy
Should you rent or buy in Bandra West? Compare monthly costs.
—
Monthly Rent Cost
—
Monthly Buy Cost (EMI)
❓ Frequently Asked Questions
What configurations are available at Nensey?
Nensey offers Pent House configurations.
When is the possession date for Nensey?
The expected possession date for Nensey is Mar 2008.
Who is the developer of Nensey?
Nensey is developed by Ekta World.
What amenities are available at Nensey?
Nensey offers amenities including High speed elevators, Imported Sanitary Fittings, POP finished walls, and more.
Where is Nensey located?
Nensey is located in Bandra West, Mumbai.
📊 Property Rates in Bandra West
⏳ Loading market data...
🏘️ Properties in Bandra West
⏳ Loading properties in Bandra West...
Bandra West · Sold Out

.webp)
.webp)



