
Project Overview
Location
Thane West
Sub-Location
Azad Nagar Brahmand Road
Status
Sold Out
Rate
₹9,990/sqft
Type
Residential
Floors
20
🎥 Project Video
+ 2 more videos — see Videos tab
📝 Project Description
🏗️ Project Details
Planned to perfection & elegance in every home surrounded by luscious greenery. Welcome to "Regency Heights" and uplift your life.
🏢 About the Project
Regency Heights, another thorough bred from the house of Regency Group, comprises of 4 towers stilt + 20 Storeys and One tower Stilt + 28 storeys, offering you a choice of 2, 3 and 4 BHK ultra spacious homes.
📍 About the Location
Ideally located with convenience around the corner.
📋 Project Remarks
Rate - Rs. 10700/- For Garden Side & Rs. 9990/- For Road Side.
🗺️ Proximity & Distances
Airport
60 min
Railway Station
10-15 min
Hospital
20-30 min
School
15-20 min
📊 Expert Analysis
🏢 Regency Group
Developer: Regency Group
🏗️ Other Projects by Regency Group
Regency Sapphire, DombivaliRegency Onyx, DombivaliRegency Luxuria, DombivaliRegency Anantam NXT, DombivaliRegency Antilia, KalyanRegency Heights, Thane WestRegency Sarvam, TitwalaRegency Ellanza, KalamboliRegency Icon, KhargharRegency Crest, KhargharRegency Towers, Thane WestRegency Estate, Dombivali
📸 Project Gallery (11 images)

Main Image

Floor Plan 1

15th April 2011

27 Dec 2011

14.6.2012

12 Jan 2013

25th Sep 2013

07.03.2014

18-Nov-2014

Floor Plan

Site Plan
🏊 Amenities & Features (11 amenities)
General
(1)
✨ None
Common
(8)
🏢 None🏛️ Club House🏋️ Gymnasium🏋️ Health Club🏃 Jogging Track🧒 Kid's play area🌳 Landscaped garden🏊 Swimming Pool
Interior
(1)
🏠 POP finished walls
Special
(1)
⭐ Massage Room
📐 Floor Plans & Site Plans
🔒 Share your details to receive floor plans directly on WhatsApp.

📐 Floor Plan — 🔐 Share details to view

🗺️ Site Plan — 🔐 Share details to view
🎥 Project Videos
Other Projects in Thane West
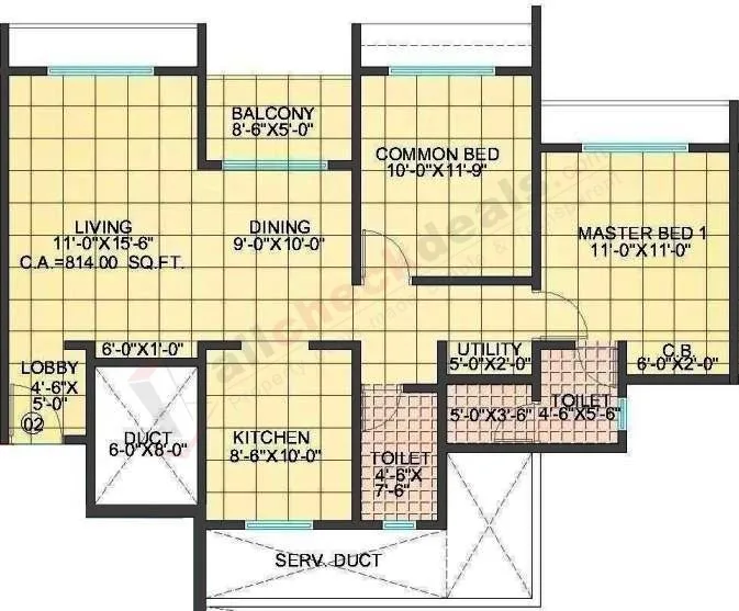
📐 Approximate Pricing — Area & Bedrooms
| Type | Carpet Area | Indicative Price | Approx. ₹/sqft |
|---|---|---|---|
| 2 BHK | 815 sq.ft. | None | — |
| 2 BHK | 857 sq.ft. | None | — |
| 3 BHK | 1018 sq.ft. | None | — |
| 3 BHK | 1071 sq.ft. | None | — |
| 3 BHK | 1260 sq.ft. | None | — |
⚠️ Disclaimer: All prices listed above are approximate and indicative only,
sourced from publicly available information. Final pricing is determined and communicated
exclusively by the Developer at their registered office. Mumbai Property Exchange makes no
warranty regarding accuracy and accepts no liability — no queries on pricing shall be
entertained.
🧮 Financial Tools
💰 EMI Calculator
—
Monthly EMI
—
Loan Amount
—
Total Interest
🔄 Rent vs Buy
Should you rent or buy in Thane West? Compare monthly costs.
—
Monthly Rent Cost
—
Monthly Buy Cost (EMI)
❓ Frequently Asked Questions
What configurations are available at Regency Height?
Regency Height offers 2 BHK, 3 BHK configurations.
What is the price per sq.ft. at Regency Height?
The approximate price per sq.ft. at Regency Height is ₹9990. Actual rates may vary.
Who is the developer of Regency Height?
Regency Height is developed by Regency Group.
What amenities are available at Regency Height?
Regency Height offers amenities including Club House, Gymnasium, POP finished walls, Massage Room, and more.
Where is Regency Height located?
Regency Height is located in Thane West, Mumbai.
📊 Property Rates in Thane West
₹9,990/sqft
This Project Rate
⏳ Loading market data...
🏘️ Properties in Thane West
⏳ Loading properties in Thane West...






