Sapphire Heights

LOCATION: Kandivali East DEVELOPER: Lokhandwala Constructions Ind Pvt Ltd
Starting from
Walk into Sapphire Heights and you experience a lifestyle so unique and transcendent that everything else will feel like an urban sprawl.From the beautiful outdoors to the beautiful indoors, your journey into exclusivity doesn't stop.

Overall Rating 9.4

Amenities 4.0

Location 4.0

Developer 9.0

Value for Money 4.0

Legal 4.0


About Sapphire Heights
Walk into Sapphire Heights and you experience a lifestyle so unique and transcendent that everything else will feel like an urban sprawl.From the beautiful outdoors to the beautiful indoors, your journey into exclusivity doesn't stop.
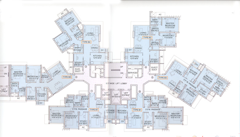
Apartments in Sapphire Heights
  • 2 BHK apartment in Sapphire Heights 1245 sq.ft. Built-up - Base Price 77.19 Lacs.
Specifications
Const. Stage: Sold Out
Parking: Open;Stilt;
Floors: 21
RERA Registered
Sapphire Heights QR Code
Sapphire Heights
MahaRERA -

Fitouts in 2 years

Guarantee with no doubt

Free Moving

Free packing & moving

Project RERA Details
MAHA RERA No:
RERA Project Name
RERA Developer
Project Type
RERA Project Status
Litigations
RERA Location
Funding Bank
Architect
Proposed Possession
Revised Possession
Extended Possession
Last Modified
Last Retrived

Sapphire Heights Queries

Location Map
3.5
Average Rating
Based on 1 Ratings and 0 Reviews
100%
Submit Review

Add a Review

Your email address will not be published. Required fields are marked *

1 2 3 4 5
Govt. Registered Transactions and Property Rates in Sapphire Heights

Latest Transactions in Sapphire Heights

Date Agreement Price Area(sq.ft) Rate/sq.ft Ready Reckoner Value Flat & Floor No. Transaction Type

Latest News & Articles

Sapphire Heights by Lokhandwala Constructions Ind Pvt Ltd